EasyManua.ls Logo

Subaru Legacy 2021 - Page 290

Subaru Legacy 2021
592 pages
Print Icon
To Next Page IconTo Next Page
To Next Page IconTo Next Page
To Previous Page IconTo Previous Page
To Previous Page IconTo Previous Page
Loading...
(286,1)
北米Model "A2600BE-B" EDITED: 2020/ 10/ 1
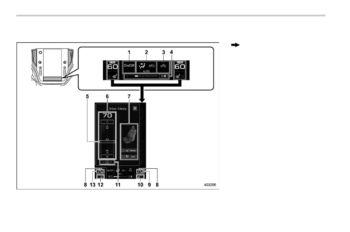
! Temperature control screen
s04ag1202
: Touch the temperature control screen
1) Climate control ON/OFF button
2) Climate control mode indicator
3) Customizable icon*
1
4) Fan speed indicator
5) Temperature control bar
6) Temperature control screen
7) Seat heater/ventilation control screen*
2
8) SYNC mode indicator
9) Set temperature indicator (right-hand
side)
10) Front passenger’s seat heater/ventilation
indicator*
2
11) SYNC button
12) Driver’s seat heater/ventilation indica-
tor*
2
13) Set temperature indicator (left-hand side)
*1: The customizable icon can be changed to
the favorite icon. Refer to “General set-
tings” FP216.
*2: For details, refer to “Front Seat Heater and
Ventilation” FP290.
Climate Control Panel
284

Table of Contents

Other manuals for Subaru Legacy 2021

Related product manuals