EasyManua.ls Logo

Summers ULTRA - Page 124

Summers ULTRA
192 pages
Print Icon
To Next Page IconTo Next Page
To Next Page IconTo Next Page
To Previous Page IconTo Previous Page
To Previous Page IconTo Previous Page
Loading...
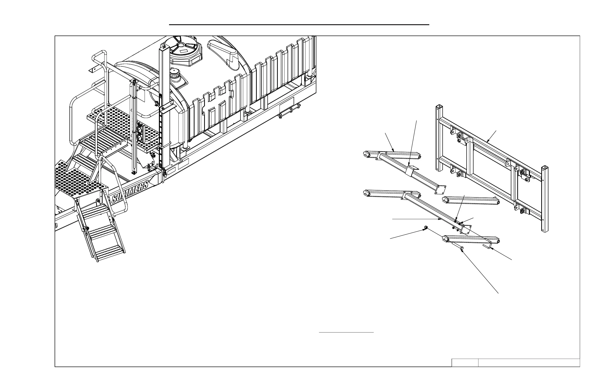
SECTION 8 - PARTS
8.50
BOOM PKG 60'PRT1&CNTR ULTIMATE
5/23/2016
8L7061/
60' CENTER BOOM PACKAGE
93' - 110' ULTIMATE
8L4715
8X0304
5/8" LW
8X0281
NY-LOCK 1"
8X0140
1 X 7"
8S0358
5/8 x 3-1/16 x 4-1/2"
8L4775
WIRING PART NUMBERS
8L0030 - SWITCH SPRING TOGGLE
8L0061 - CART WIRING HARNESS
8L0062 - CART HARNESS EXTENSION
8L0071A - VALVE WIRING HARNESS
8L0081 - BOOM WIRING HARNESS
8K8030A - LIGHT MODULE
8L4734A
8L4732A
8X0250
5/8" N

Related product manuals