EasyManua.ls Logo

SunPower Maxeon - Page 63

SunPower Maxeon
113 pages
Print Icon
To Next Page IconTo Next Page
To Next Page IconTo Next Page
To Previous Page IconTo Previous Page
To Previous Page IconTo Previous Page
Loading...
MAXEON SOLAR TECHNOLOGIES, LTD.
537620 Rev.I
©2024 Maxeon Solar Technologies, Ltd. Alle rechten voorbehouden. Specificaties in dit document kunnen zonder voorafgaande kennisgeving worden gewijzigd. 15
Bevesgings-
configurae
Beschrijving
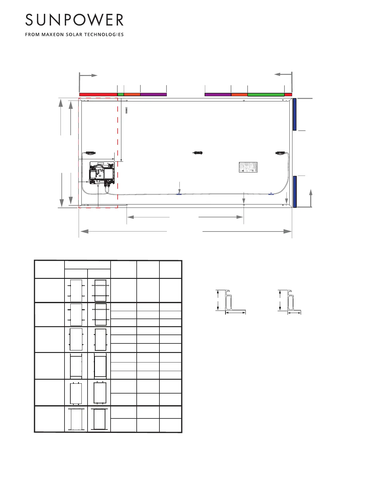
Montage Configurae diagram
Vooraanzicht Achteraanzicht
Locaes voor
montagezones
(asand van de hoek
in mm)
313 - 402
502 - 754
+2000/-2400
+1400/-1800
+2000/-1800
+2000/-2000
+1333/-1600
+933/-1200
+1333/-1200
+1333/-1333
BOVENKLEMMEN
GEN 4,4 FRAMEPROFIEL
A - Aardingsgaten (4X Ø 4,2mm)
B - Bevesgingsgaten (4X 9mm (W) x 14mm (L), R4.5mm)
SunPower Performance 6 AC resideneel zonnepaneel
(SPR-P6-XXX-BLK-E8-AC, SPR-P6-XXX-BLK-E9-AC)
1086 mm
1808 mm
0
B
PROFIEL VAN ZIJFRAME
PROFIEL VAN EINDFRAME
0
321
1100 mm
502
402
0
0
Micro-omvormer
uitsluingszone
402 - 502
+5400/-2400
+3600/-1600
0 - 221
+1400/-1400
+933/-933
313
Testbelasng
Omlaag/Omhoog
(Pa)
Ontwerp-
belasng
Omlaag/Omhoog
(Pa)
754
A
1038 mm
0 - 221
+1400/-1400
+933/-933
502 - 754
402 - 502
321
50 - 402
+2000/-2000
+1333/-1333
50 - 402
+2800/-1800
+1867/-1200
402 - 502
+2800/-1800
+1867/-1200
502 - 754
502 - 754
+2800/-1800
+1867/-1200
502
402
50
754
30 mm
33 mm
30 mm
24 mm
De meeoleranes zijn +/-3 mm voor de lengte en breedte van de module.
221 - 321
+1600/-1600
+1067/-1067
221 - 321
+1800/-1200
+1200/-800
235 mm
90 mm
638,23 mm
302,77 mm
AC Clips
Montage aan lange
zijde, rails loodrecht
op montagekader
Montage aan lange
zijde, puntsteun
Montage aan korte
zijde, puntsteun
(eindmontage)
Montage aan korte
zijde, rails parallel
aan montagekader
(eindmontage)
Montage aan lange
zijde, rails
evenwijdig aan
montagekader
Montage aan lange
zijde, rails loodrecht
op montagekader
313 - 617
+2700/-2000
+1800/-1333
2 De testbelasngen zijn slechts ter informae; voor het projectontwerp moet rekening worden gehouden
 Ontwerpbelasng houdt rekening met 1,5 veiligheidsfactor, testbelasng = ontwerpbelasng x 1,5. De
productgarane dekt alleen de waarden van de ontwerpbelasng. De in deze tabel vermelde
ontwerpbelasngen hebben voorrang op alle andere belasngen die door andere parjen kunnen
3 De rails mogen zich niet onder de Micro-omvormer bevinden.
4 In de gevallen waarin hybride montage noodzakelijk is (combinae van montage aan lange en korte zijde),
moeten de laagste waarden van de ontwerpbelasng worden beschouwd als toelaatbare ontwerpbelasng.
5 Montage op bodemflens
6 Bereik gee posionering van de klem aan en niet van de rails
worden gedefinieerd, tenzij er een formele toestemming van Maxeon is.
met de ontwerpbelasngen.

Related product manuals