EasyManua.ls Logo

SunPower PERFORMANCE P6-COM-S-BF - Page 25

SunPower PERFORMANCE P6-COM-S-BF
104 pages
Print Icon
To Next Page IconTo Next Page
To Next Page IconTo Next Page
To Previous Page IconTo Previous Page
To Previous Page IconTo Previous Page
Loading...
MAXEONSOLARTECHNOLOGIES,LTD.
Instructionsdesécuritéetd’installation‐Document00115497RevW
©décembre2021MaxeonSolarTechnologies,Ltd.Tousdroitsréservés.Lesspécificationscontenuesdanscemanuelsontsusceptiblesd’êtremodifiéessanspréavis.
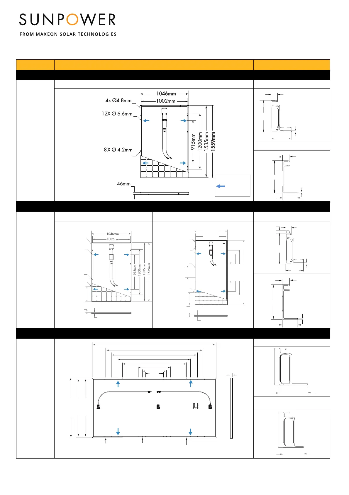
Tableau2:Détailsdescadresdespanneaux
Platforme Montagedes
panneaux
etdétailsdestrousdemiseàlaTerre Profilducadre
CADRERESIDENTIELG3UNIQUEMENT
Panneaux
résidentielles
Détailsducadredupanneau96cellules PROFILDUGRANDCOTE
PROFILDUPETITCOTE
POURPANNEAUXCOMMERCIAUX(CADREGRISUNIQUEM ENT)
Panneaux
commerciaux
Modulecommercial96cellules Modulecommercial128cellules PROFILDUGRANDCOTE
POURPANNEAUXDELASERIEPUNIQUEMENT(CADREGRIS)4.1
Panneaux
commerciaux
PROFILDUGRANDCOTE
PROFILDUPETITCOTE
T
rou d’evacuation
Trous de montage
Trous pour
mise à la terre
(Vue de dos)
(Vue de face)
32 mm
46.08 mm
10.30 mm
18.50 mm
2.20 mm
22 mm
46.08 mm
10.50 mm
1.27 mm
4X Ø 4,8 mm
Trou d’evacuation
12X Ø 6.6 mm
Trous de montage
6X Ø 4,2 mm
Trous pour mise
à la terre
4X Ø 6,10 mm
Points d’empilage
3,2 mm
398 mm
46 mm
(Vue de face)
(Vue de dos)
Points d’empilage
4X Ø6,10 mm
300 mm
20X Ø6,8 mm
Trous de montage
4X Ø4,2 mm
Trous pour mise
à la terre
4X Ø4,8 mm
Trou d’évacuation
398 mm
3,2 mm
46 mm
(Vue de face)
(Vue de dos)
1046 mm
1002 mm
2067 mm
1200 mm
1423 mm
539 mm
32 mm
46.08 mm
3.18 mm
10.30 mm
18.50 mm
2.20 mm
22 mm
46.08 mm
10.50 mm
1.27 mm
998 mm
46 mm
MODEL: SPR-P19-410-COM
Rated Power (Pmax)
1
(+5/
0
%) 410
W
Voltage (Vmp) 43.9
V
Current (Imp) 9.35
A
Open-Circuit Voltage (Voc) 53.1
V
Short-Circuit Current (Isc) 9.94
A
Maximum SeriesFuse 15
A
1
Standard Test Conditions: 1000 W/m
2
, AM 1.5, 25° C
Suitable for ungrounded, positive, or negative grounded DC systems
Field Wiring: Cu wiring only, min. 12 AWG/4 mm
2
, insulated for 90° C min.
WARNING
SEVERE ELECTRICAL HAZARD
• Solar module has full voltage even in very low light.
• Installation should only be done by a qualified technician.
527040
www.sunpower.com
Patented as shown at www.sunpower.com/patents
Safety Class II
Fire Rating: Class C
Max. System Voltage:1500 V DC
954 mm
961 mm
2067 mm
300 mm
400 mm
539 mm
1058 mm
1200 mm
1423 mm
1606 mm
4X Ø 4,2mm
Trous pour mise
à la terre
20X Ø 6,8mm
Trous de montage
4X 5.0mm (W) x 15.0mm (L)
SLOT
46mm
32mm
46mm
24 mm
Méthode1:
Emplacement
destrousde
fixation
Latolérancesurlesdimensionsmentionnéesdanslesgraphiquescidessusestde+/‐3mmpourlalongueuretlalargeur.

Related product manuals