EasyManua.ls Logo

SunPower PERFORMANCE P6-COM-S-BF - Page 52

SunPower PERFORMANCE P6-COM-S-BF
104 pages
Print Icon
To Next Page IconTo Next Page
To Next Page IconTo Next Page
To Previous Page IconTo Previous Page
To Previous Page IconTo Previous Page
Loading...
๎˜ƒ
MAXEON๎˜ƒSOLAR๎˜ƒTECHNOLOGIES,๎˜ƒLTD.๎˜ƒ
๎˜ƒ๎˜ƒ๎˜ƒ๎˜ƒ๎˜ƒ๎˜ƒ๎˜ƒ๎˜ƒ๎˜ƒ๎˜ƒ๎˜ƒ๎˜ƒ๎˜ƒ๎˜ƒ๎˜ƒ๎˜ƒ๎˜ƒ๎˜ƒ๎˜ƒ๎˜ƒ๎˜ƒ๎˜ƒ๎˜ƒ๎˜ƒ๎˜ƒ๎˜ƒ๎˜ƒIstruzioni๎˜ƒper๎˜ƒla๎˜ƒsicurezza๎˜ƒe๎˜ƒlโ€™installazione๎˜ƒโ€๎˜ƒDocumento๎˜ƒ001โ€15497๎˜ƒRev๎˜ƒW
๎˜ƒ
ยฉdicembre๎˜ƒ2021๎˜ƒMaxeon๎˜ƒSolar๎˜ƒTechnologies,๎˜ƒLtd๎˜ƒ.๎˜ƒTutti๎˜ƒi๎˜ƒdiritti๎˜ƒriservati๎˜ƒ.๎˜ƒLe๎˜ƒspecifiche๎˜ƒcontenute๎˜ƒin๎˜ƒquesto๎˜ƒmanuale๎˜ƒsono๎˜ƒsoggette๎˜ƒa๎˜ƒmodifiche๎˜ƒsenza๎˜ƒpreavviso๎˜ƒ.๎˜ƒ
๎˜ƒ๎˜ƒ
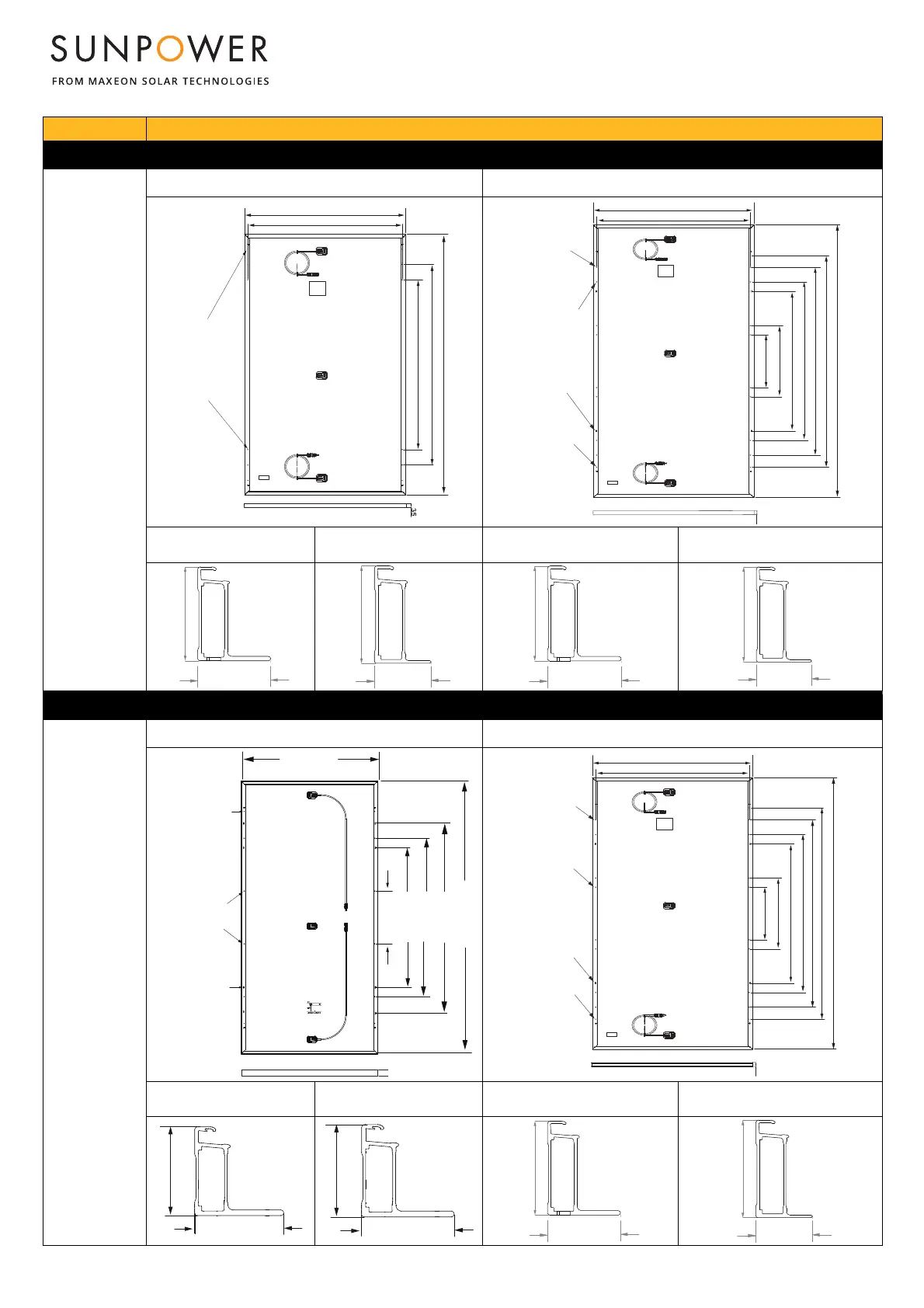
Piattaforma๎˜ƒ Dettaglio๎˜ƒposizione๎˜ƒfori๎˜ƒper๎˜ƒil๎˜ƒmontaggio๎˜ƒe๎˜ƒfori๎˜ƒper๎˜ƒil๎˜ƒcollegamento๎˜ƒdella๎˜ƒterra๎˜ƒ๎˜ƒ
Solo๎˜ƒper๎˜ƒmoduli๎˜ƒdella๎˜ƒSerie๎˜ƒP3๎˜ƒ
Moduli๎˜ƒ
Residenziali๎˜ƒ/๎˜ƒ
commerciali๎˜ƒ
P3๎˜ƒBLK๎˜ƒ(Gen๎˜ƒ4.3)๎˜ƒ P3๎˜ƒCOM๎˜ƒ(Gen๎˜ƒ4.2)๎˜ƒ
๎˜ƒ
๎˜ƒ
Sezione๎˜ƒdella๎˜ƒcornice๎˜ƒ(lato๎˜ƒ
lungo๎˜ƒdel๎˜ƒ๎˜ƒmodulo)
๎˜ƒ
Sezione๎˜ƒdella๎˜ƒcornice๎˜ƒ(lato๎˜ƒ
corto๎˜ƒdel๎˜ƒmodulo
๎˜ƒ
Sezione๎˜ƒdella๎˜ƒcornice๎˜ƒ(lato๎˜ƒlungo๎˜ƒ
del๎˜ƒ๎˜ƒmodulo)
๎˜ƒ
Sezione๎˜ƒdella๎˜ƒcornice๎˜ƒ(lato๎˜ƒcorto๎˜ƒdel๎˜ƒ
modulo
๎˜ƒ
๎˜ƒ
๎˜ƒ๎˜ƒ
๎˜ƒ
Solo๎˜ƒper๎˜ƒmoduli๎˜ƒdella๎˜ƒSerie๎˜ƒP3๎˜ƒGen๎˜ƒ4.3
Moduli๎˜ƒ
commerciali๎˜ƒ
P3๎˜ƒUPP P3๎˜ƒCOM
Sezione๎˜ƒdella๎˜ƒcornice๎˜ƒ(lato๎˜ƒ
lungo๎˜ƒdel๎˜ƒ๎˜ƒmodulo)
Sezione๎˜ƒdella๎˜ƒcornice๎˜ƒ(lato๎˜ƒ
corto๎˜ƒdel๎˜ƒmodulo
Sezione๎˜ƒdella๎˜ƒcornice๎˜ƒ(lato๎˜ƒlungo๎˜ƒ
del๎˜ƒ๎˜ƒmodulo)
Sezione๎˜ƒdella๎˜ƒcornice๎˜ƒ(lato๎˜ƒcorto๎˜ƒdel๎˜ƒ
modulo
๎˜ƒ
998 mm
954 mm
1690 mm
1300 mm
1100 mm
4X ร˜4,2mm
Fori per la messa
a terra
8X ร˜6,8mm
Fori per il
montaggio
400 mm
539 mm
1058 mm
1423 mm
954 mm
2066 mm
998 mm
40
4X ร˜4,2mm
Fori per la messa
a terra
Fori per il
montaggio
12X ร˜6,7mm
Fori per il
montaggio
4X ร˜6,8mm
4X 5,0mm (W)
x 15,0mm (L)
SLOT
1200 mm
1606 mm
32mm
35 mm
24 mm
35 mm
32mm
40 mm
24 mm
40 mm
1160 mm
2066 mm
MODEL: SPR-P19-410-COM
Rated Power (Pmax)
1
(+5/
0
%) 410
W
Voltage (Vmp) 43.9
V
Current (Imp) 9.35
A
Open-Circuit Voltage (Voc) 53.1
V
Short-Circuit Current (Isc) 9.94
A
Maximum SeriesFuse 15
A
1
Standard Test Conditions: 1000 W/m
2
, AM 1.5, 25ยฐ C
Suitable for ungrounded, positive, or negative grounded DC systems
Field Wiring: Cu wiring only, min. 12 AWG/4 mm
2
, insulated for 90ยฐ C min.
WARNING
SEVERE ELECTRICAL HAZARD
โ€ข Solar module has full voltage even in very low light.
โ€ข Installation should only be done by a quali๏ฌed technician.
527040
www.sunpower.com
Patented as shown at www.sunpower.com/patents
Safety Class II
Fire Rating: Class C
Max. System Voltage:1500 V DC
400 mm
700 mm
1058 mm
1300 mm
4X ร˜4,2 mm
Fori per la
messa a terra
8X 10mm(L) x 7mm(W)
R3,5mm
Fori per il montaggio
8X 14mm (L) x 9mm(W)
R4.5mm
SLOT
35 mm
400 mm
539 mm
1058 mm
1423 mm
954 mm
2066 mm
998 mm
35
4X ร˜4,2 mm
Fori per
la mess a terra
Fori per il
montaggio
4X ร˜6,7 mm
Fori per il
montaggio
12X ร˜6,8 mm
4X 5,0 mm (W)
x 15,0 mm (L)
SLOTS
1200 mm
1606 mm
35 mm
35 mm
35 mm
35 mm
32mm
35 mm
24 mm
35 mm

Related product manuals