EasyManua.ls Logo

SUNWARD SWL3220 - Other Data; Electric Diagram

SUNWARD SWL3220
89 pages
Print Icon
To Next Page IconTo Next Page
To Next Page IconTo Next Page
To Previous Page IconTo Previous Page
To Previous Page IconTo Previous Page
Loading...
SWL Series Skid Steer Loader
85
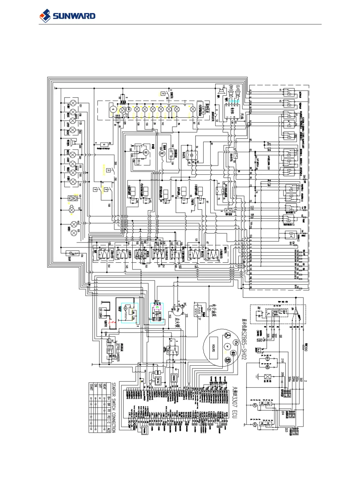
7 OTHER DATA
7.1 ELECTRIC DIAGRAM

Table of Contents

Related product manuals