EasyManua.ls Logo

Super 3600 - Page 21

Super 3600
Print Icon
To Next Page IconTo Next Page
To Next Page IconTo Next Page
To Previous Page IconTo Previous Page
To Previous Page IconTo Previous Page
Loading...
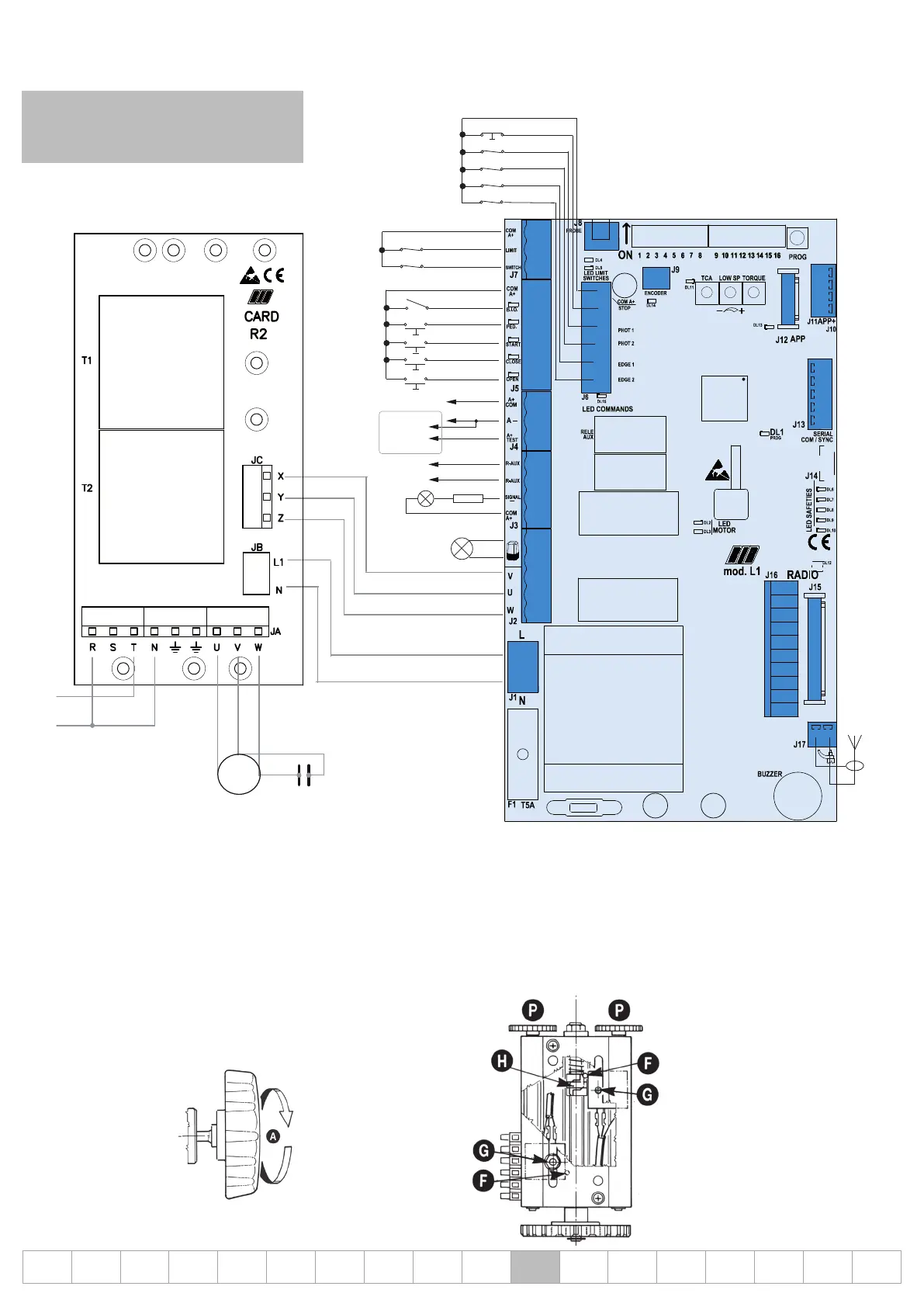
L1/R2-CRXSUPER 3600 
1
ITA ESP ENG FRA GRE DEU RUS ARA THAI BUL FAR TUR HIN CHI
M
ﭻﯿﺋﻮﺳ ندﺮﮐ دوﺪﺤﻣ
ﭻﯿﺋﻮﺳ ندﺮﮐ دوﺪﺤﻣ
LED
R=2,2K 1/4W
24Vdc 0,4A ±15%
24Vdc 0,4A ±15%
700 W MAX
کﺮﺘﺸﻣ
1 ﯽﭙﮐﻮﺘﻓ
ندﺮﮐ ﻒﻗﻮﺘﻣ
2 ﯽﻨﻤﯾا راﻮﻧ
2 ﯽﭙﮐﻮﺘﻓ
1 ﯽﻨﻤﯾا راﻮﻧ
رﺎﺘﺳﺮﭘ
ﻦﮐ زﺎﺑ
ﱳﺴﺑ
ﺖﻋﺎﺳ
ﺪﺣاو ﻒﯾدر
کﺮﺘﺸﻣ
کﺮﺘﺸﻣ
کﺮﺘﺸﻣ
کﺮﺘﺸﻣ
کﺮﺘﺸﻣ
نز ﮏﻤﺸﭼ غاﺮﭼ
تاو 40 تاو 230
قﺮﺑ ﻦﯿﻣﺎﺗ
ﺰﺗﺮﻫ 50 تاو 230
نزﺎﺧ
ﱳﻧا
MHz 433
ﯽﯾاﻮﻫ ﺮﭙﺳ
ﱳﺴﺑ
ﻦﮐ زﺎﺑ
A+TEST / A-
رﺎﮐدﻮﺧ لﺮﺘﻨﮐ
ﻞﺳﻮﺘﻓ
PEDESTRIANTOTALTCA TRIMMER - AUTOMATIC CLOSING
LED DL11 OFF (trimmerNOT ACTIVATED




2
A
G

H
P
F
H
G



H

ON
