EasyManua.ls Logo

Super 3600 - Page 5

Super 3600
Print Icon
To Next Page IconTo Next Page
To Next Page IconTo Next Page
To Previous Page IconTo Previous Page
To Previous Page IconTo Previous Page
Loading...
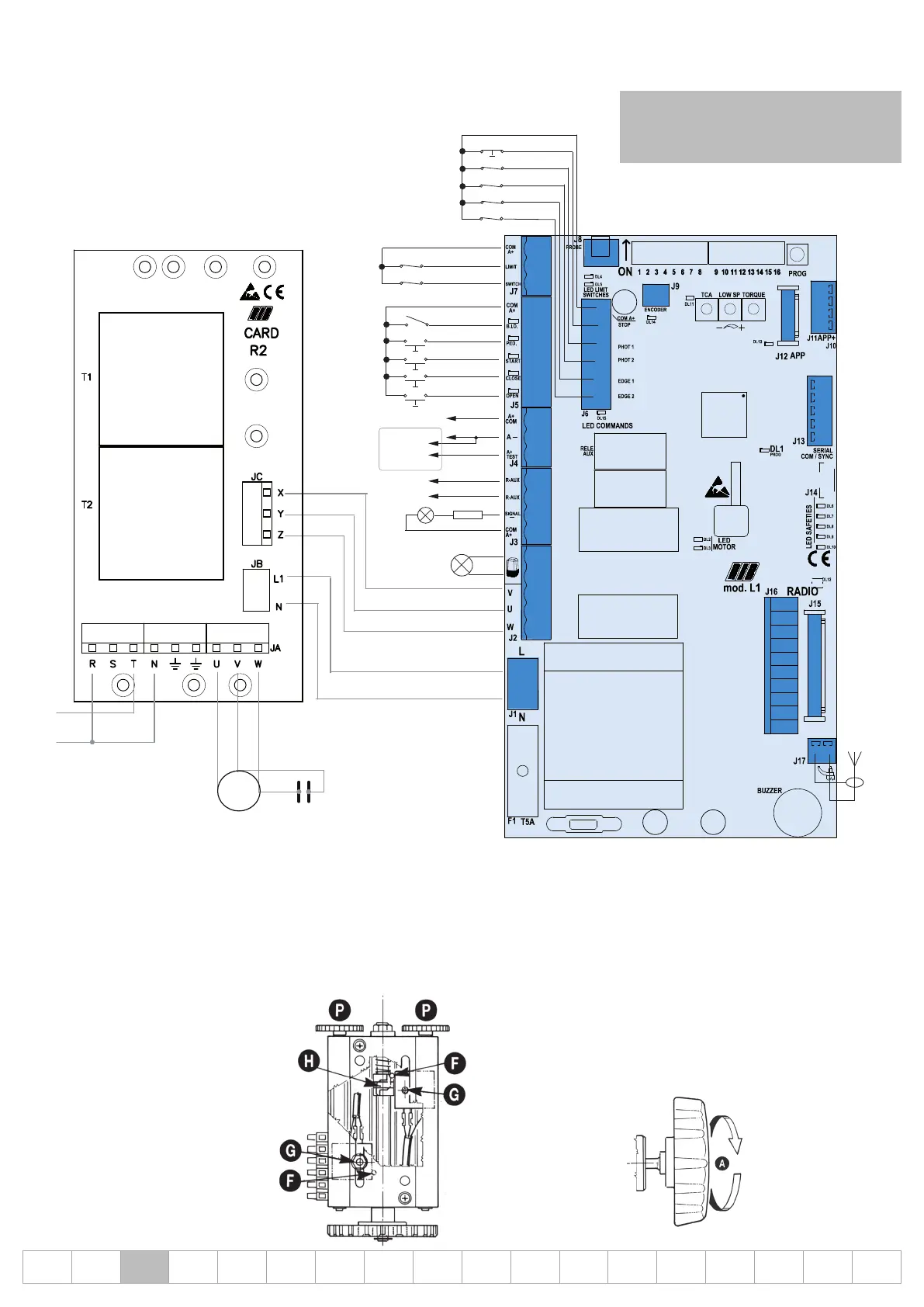
SIMPLIFIED INSTRUCTIONS FOR SUPER 3600 WITH L1/R2-CRX
Connecting the motor and limit switch (done in the factory)
ITA ESP ENG FRA GRE DEU RUS ARA THAI BUL FAR TUR HIN CHI
M
BLINKER
230Vac 40W MAX
LIMIT SWITCH
LIMIT SWITCH
COMMON
PHOTOCELL 1
PEDESTRIAN
OPEN
STOP
CLOSE
TIMER
SINGLE COMMAND
LED
R=2,2K 1/4W
COMMON
COMMON
COMMON
COMMON
EDGE 2
PHOTOCELL 2
EDGE 1
A+TEST / A-
PHOTOCELLS
AUTO-TEST
ANTENNA
433 MHz
ANTENNA
BRAIDING
24Vdc 0,4A ±15%
24Vdc 0,4A ±15%
700 W MAX
CLOSE
OPEN
COMMON
POWER SUPPLY
230Vac 50 Hz
CAPACITOR
TCA TRIMMER - AUTOMATIC CLOSING pause time regulator for TOTAL or PEDESTRIAN openings
default NOT ACTIVATED and LED DL11 OFF (trimmer fully rotated counterclockwise)
This trimmer makes it possible to adjust the pause time for total or pedestrian automatic closing. Only with gate completely open (total) or partially open (pedestrian) and LED DL11 ON (trimmer
rotated clockwise to activate the feauture).
The pause time (for a totally opened gate) can be adjusted from a minimum of 2 s up to a maximum of 2 minutes.
The pause time (for gate open with PED. control) can be adjusted from a minimum of 2 seconds to a maximum of 30 seconds.
2 - LIMIT SWITCH ADJUSTMENT
Release the operator using handle “A” as indicated
below, therefore releasing the G nuts.
Move the mobile part manually to establish the direction
of the H cams’ movement both in opening and closing.
With the gate open and closed, put the two F limit
switches on the P handles so that they are pressed by
the H cams.
Lock the G nuts.
TO OPEN THE GATE MANUALLY
The sump with the appropriate key must be opened.
Insert the RIB hex key in the release screw and turn it 3 times anti-clockwise.
To restore the electric functioning, operate in the opposite direction.
N.B. The H cams must press the electric micro switches before the mobile part touches the
mechanical stops.
IT IS COMPULSORY TO SET
DIP 13 IN THE ON POSITION