EasyManua.ls Logo

Superior KR-38 - Gas Insert Specifications

Superior KR-38
20 pages
Print Icon
To Next Page IconTo Next Page
To Next Page IconTo Next Page
To Previous Page IconTo Previous Page
To Previous Page IconTo Previous Page
Loading...
Vsmlcullta
(4CF)
PIN
042363
VIR-ME
Yola:
kIud#d
wilh
#N
models.
Ember
Coals.
3
or.
PIN 901099
EMB-3
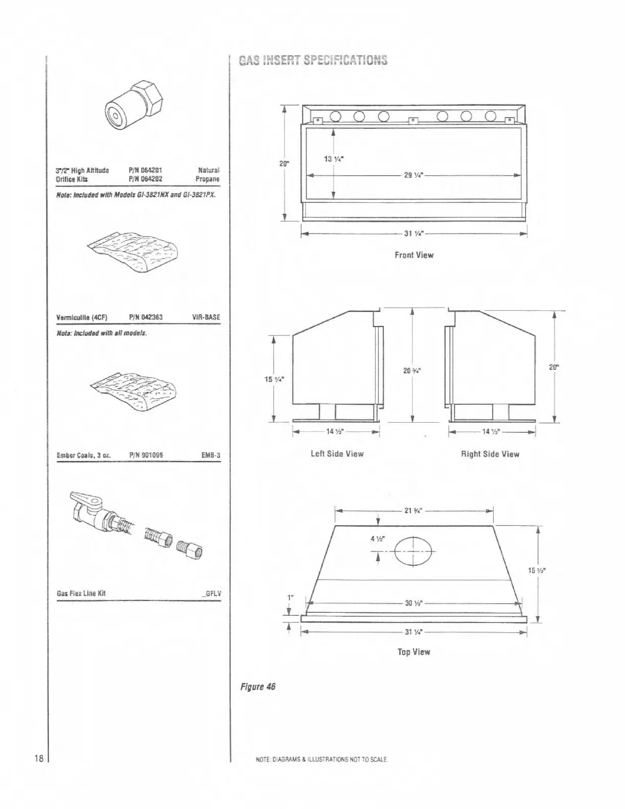
Front
View
I
-14'/i- 14
'h'
-!
Len
Side View Right Side View
Top
View
Figure
46
NOTE:
OIAIiPAMS&
ILLUSTRATIWS NOTTO
SUIE

Related product manuals