EasyManua.ls Logo

Tecfrigo VKG 511 - Page 23

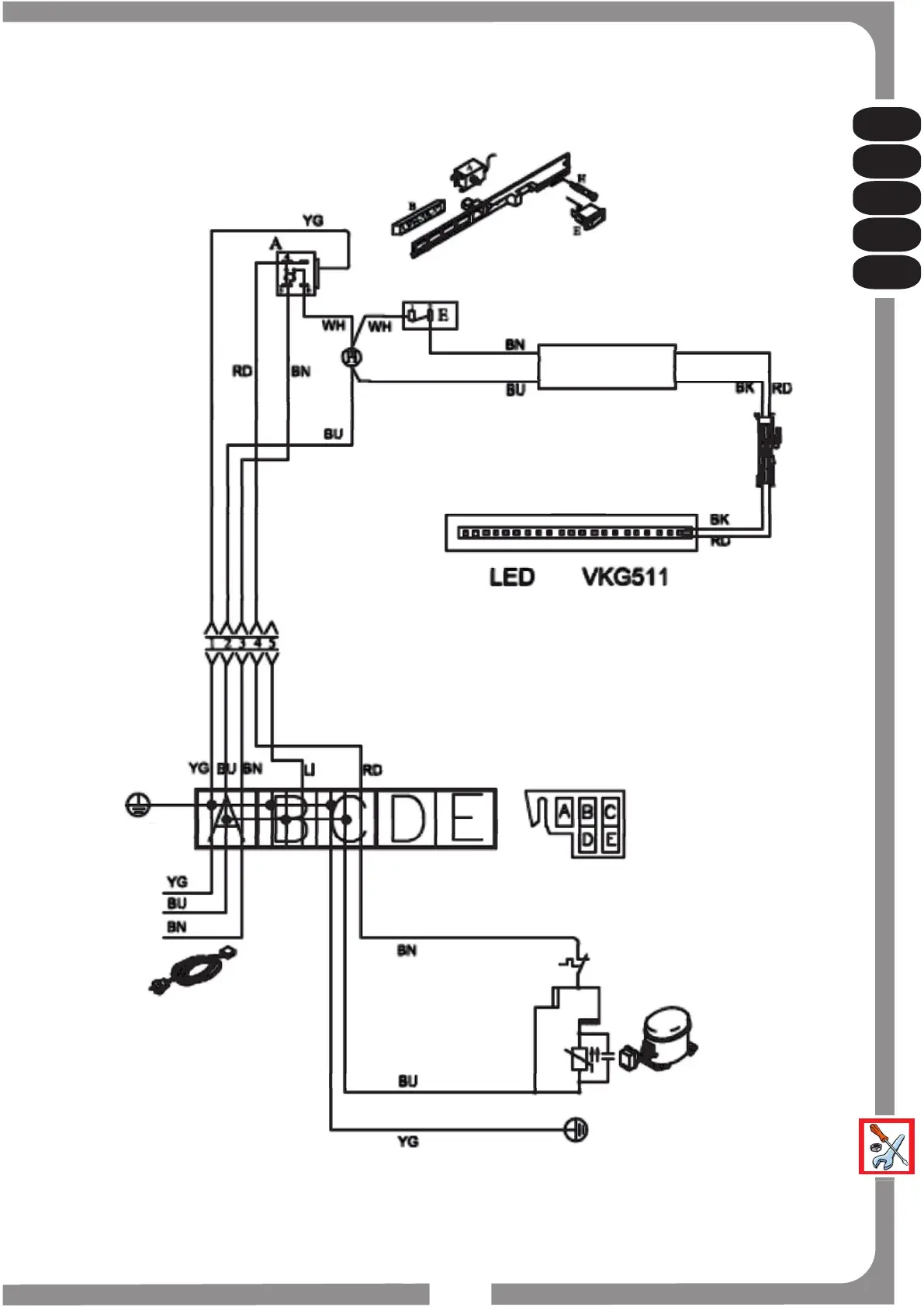
Tecfrigo VKG 511
Print Icon
To Next Page IconTo Next Page
To Next Page IconTo Next Page
To Previous Page IconTo Previous Page
To Previous Page IconTo Previous Page
Loading...
I
UK
D
E
F
NL
23