EasyManua.ls Logo

Technibel PHRIE 095 - Page 49

Default Icon
147 pages
Print Icon
To Next Page IconTo Next Page
To Next Page IconTo Next Page
To Previous Page IconTo Previous Page
To Previous Page IconTo Previous Page
Loading...
49
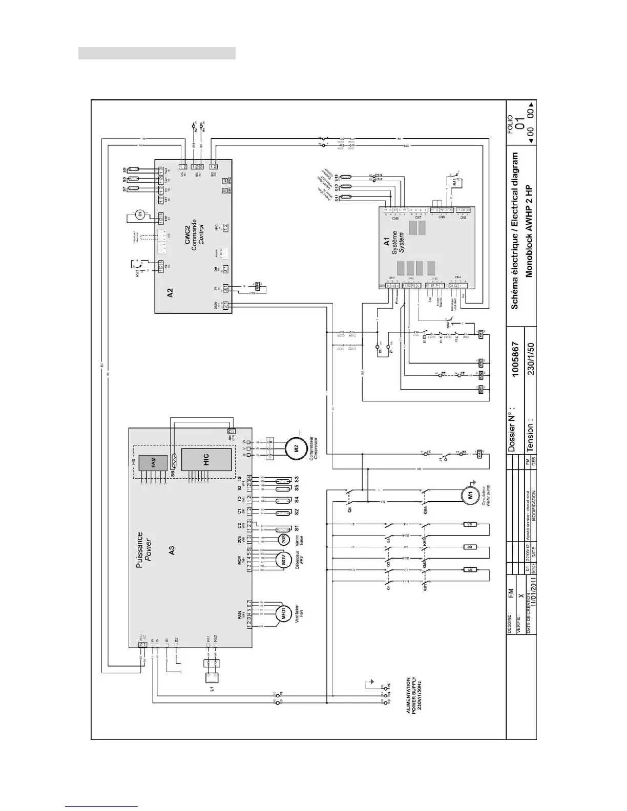
3.1 – ELECTRICAL DIAGRAMS
3.1.1 MODEL 095 (2 HP) – 230V Single phase

Other manuals for Technibel PHRIE 095

Related product manuals