EasyManua.ls Logo

Technics SB-EH760 - Page 62

Technics SB-EH760
67 pages
Print Icon
To Next Page IconTo Next Page
To Next Page IconTo Next Page
To Previous Page IconTo Previous Page
To Previous Page IconTo Previous Page
Loading...
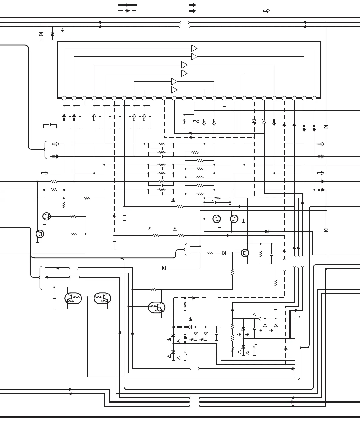
SCHEMATIC DIAGRAM- 5
M
O
G
A
10K
10K
10K
10K
10K
10K
Q706, 708
UN4211TA
SWITCHING
Q558
UN4211TA
SWITCHING
C
F
B
D
G
E
A
Q601 Q602
Q503
2SD2144STA
SWITCHING
D756
MA700ATA
C603 470P
C604 470P
C607 470P
C608 470P
C649 1000P
C650 1000P
C605 1000P
C606 1000P
C648
1000P
C617
0.01
C618
0.01
R648
1/4W120
R647
1/4W390
D702,704,752
1N5402BM21
R571
5.6K
R544
10K
R572
15K
D558
MA165TA
R637
15K
C619
0.01
R638
68K
R623 120K
R619 120K
R622 120K
R621 150K
R624 150K
R620
120K
R612 56K
R611 56K
R610 150K
R609 150K
R608 56K
R607 56K
C610 56P
C609 56P
C612 15P
C611 15P
C614 47P
C613 47P
R627
470K
C616
50V0.47
N
D601
SB360L6508
D602
SB360L6508
R628 22K
C622 50V100
D754,755
RL1N4003N02
D755 D754
C704
35V4700
C702
35V4700
D752
D702
D704
C761
0.1
R703
1W2.2K
R704
1W2.2K
R705
1W2.2K
D703
D701
D751
C703
35V4700
C701
35V4700
D701,703,751
1N5402BM21
C709
0.1
IC601
RSN311W64A
POWER AMP
Q708 Q706
D757
MA700ATA
123456789101112131415181920212223242526 1617
R604
3.3K
R601 3.3K
R602
3.3K
R618
4.7K
Q601,602
2SC5398RSTA
SWITCHING
D607
1SS291TA
L
K
R702
27K
D658
MA165TA
D657
MA165TA
B
A
R685
1K
R686
1K
Q607, 608
2SD2144STA
MUTING
Q607
Q608
C705
0.01
D753,761
RL1N4003N02
D753D761
D659
MA165TA
R691
1/2W150
: SOURCE SIGNAL LINE
: POSITIVE VOLTAGE LINE
: NEGATIVE VOLTAGE LINE
: SURROUND SP.DRIVE SIGNAL LINE
: CENTER SP.DRIVE SIGNAL LINE
-7.5V
7.5V
0V-61.9V 0V0V0V 0V 29.9V-30.4V0V-30.7V-61.6V0V 0V 0V 0V 0V 0V61.4V 30.2V -0.2V 0V 0V 61.5V
5.3V
0V
5.3V
0V
0V
0V
0V
5V
10.2V
0V
2.1V
0V
14.8V
6.2V
10.4V
30.2V
-61.9V
-30.7V
61.5V
-61.9V
14.2V
6.2V
10.4V
0V
0V
0V
0V

Related product manuals