EasyManua.ls Logo

Technics SL-P222A - Page 20

Technics SL-P222A
47 pages
Print Icon
To Next Page IconTo Next Page
To Next Page IconTo Next Page
To Previous Page IconTo Previous Page
To Previous Page IconTo Previous Page
Loading...
10
11
SL-P222A
SL-P222A
SLOOOIF
)
ims
1ov/
Ol
WW
R608
82
|
IC
601
MN1I5283
PEY-I
SYSTEM
CONTROL
&
FL
DRIVE
1C602
HC-MDIOE
REMOTE
CONTROL
RECEIVER
28
|
ISYSTEM
CONTROL
(&
FL
ORIVE
CN602
qi
2
3
Pa
|
os
4
meh
agv
SB
5
6
CN603
f
2
3
4
ie
5
=
=
:
r
2eh
sow
&
a
oO
2
2
cN604
a
:
b
2:
c
3
d
4
e
5
$623
$625
f
5
(PROGRAM)
(RECALL?
Q
:
suis.
a
-
$603
S627
S629
(SKIP
Bm)
|
(AUTO
CUE
(M.SCAN}
peel
eee
pas
ines
pete
*
$602
$60!
S628
L601!
(SKIP
Hed)
OPEN/CLOSE
&)
(RANDOM)
1
th
cides
Seo
aes
oa
S618
$607
(10)
(+10)
pace
Hy
a
ee
$609
$608
(an)
(0)
pe
ee
SRS
ra
TRIX
—-
23
-
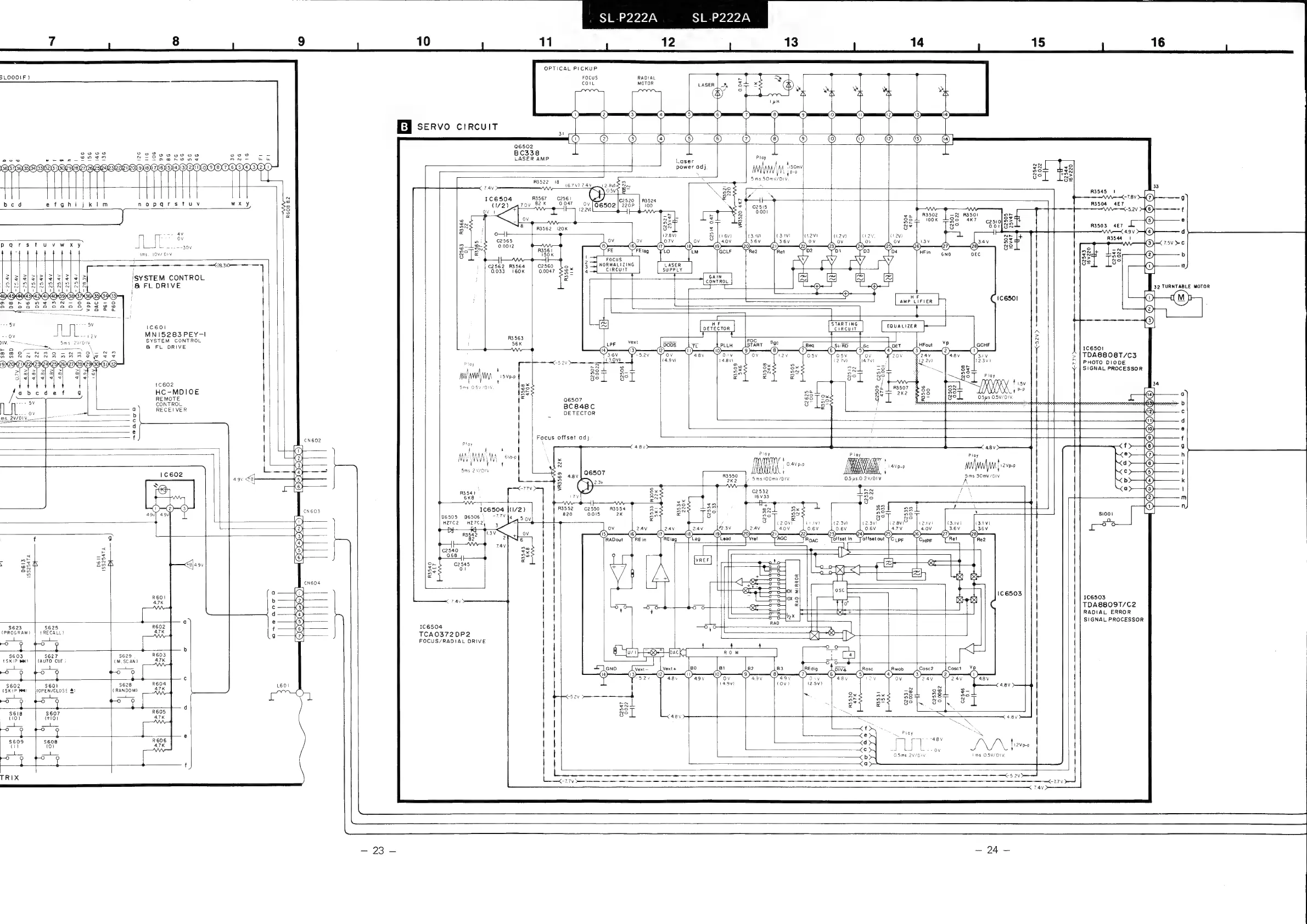
OPTICAL
PICKUP
C2544
16V220
33
R3545
|
“7.8
47)
9
R3504
4€7
-5.2V
(6
4———-
f
(5)
e
R3503
4€7
49v
44)
d
R3544
|
(Gy
75V
>C
oe
Les
3s
oo
2)
b
se
18
C)
a
32
TURNTABLE
MOTOR
di}
a
@)
1C6501
TDA8808T/C3
PHOTO
DIODE
SIGNAL
PROCESSOR
a
i
FOCUS
RADIAL
t
~t
2
¢
¢ ?
af
cole
MOTOR
tasen|
A
SH
¥
@)
°
*
\
A
ZK
CO)
2
3
(4)
(4)
EE]
servo
circuit
31
[‘O
@
Oo
©
Q6502
Bc33e
=
LASER
AMP
zAf
Laser
Ao
aie.
power
adj.
WWM
:150mV|
ga
!
Vig
pp
neo
ma
\
yy
sel
ca
<
5ms.5Omv/D1V,
a,
Tay
e522
;.18
(67V)
74Vv
4
2.8V)
Ray
ay
1).
CH
osvy
xo
BS
1C6504
re
ele
ray,
c2520
|
R3524
&
t
(72
arow
She
4
O87
Oy
[86502
|
220P
|
100
7
ov
i
1
,.
°
-5
&
&
R3502
|
~&
R350!
er
as
ae
Le
2
aoe
100K
SO
4k7
gosig/
SEF
o
oO
No
8
7
pas62
120K
ge
=
>
st
g
OONge
(2.8V)
§
(L6v)
(3.10
(3
(L2v)
2)
M2
U.2vi
oe
ov
O7V
OV
40V
36V
3.6V
Ov
ov
Ov
Ov
1.3V
34V
o>
6
©
@)
@2)
@3)
4)
@5)
©
¢?)
28)
se
FElag
Lo
LM
GCLF
Re2
Ret
02
O14
03
Da:
HFin
GND
EC
i)
FOCUS
N
C2562
P3566
g
wontattae
|
CASER
YY
AY
0.033
160K
4
rey
SUPPLY
GAIN
~~
|
me
sun
Ez)
ee
:
H
Lot
=
AMPLIFIER
|]
'C6501
+
T
Lo
2
Le]
HF
STARTING
DETECTOR
CIRCUIT
P3563
Lae
FOC
!
56K
oes
.
doDSs
Tw
an
START
ae
Tsiiro
oe
it
36V,
~5.2V
Ov
48V
O1Vv
ov
2v
0.5V
O5V
Ov
(
: :
Etay
8
Vd
—x
V.
(4.9V)
ee
Bo
=
27?v)
am
Aaah
ge
3+
Bx
BS
Be
fal
ae
ANA
NA
vent
ge]
sol
a
all
@
2
eel.
87
Sms
O5V6DIV
25
4
Be
RS56
ir
06507
se
[ee
BC848C
o
Le
riestt
DETECTOR
|
Focus
offset
adj
iB
Pr
.
i
ay
:
|
aBy
:
4.8V
h
AAA
AV
j
Flay
Pia
WWW
ee
x
a
rs
A
eee
'
gy
i
Af
|
0.4Vp-8
‘avpes
Wall
fnn}
2v0-
Sms
2u/D1V
in
;
i
ile
2
4av
ea
toomy
ov
ane
SOmv/DiV
2
A
&
-
R3541
7
8x
2532
ag
J
\
6K8
on
\
+
7
4b
=
1
icssog
ee
ee
.
06505
06506
7
7V
Iq
:
HZTC2
HZ7C2,
1C6504
TCAO372DP2
FOCUS/RADIAL
DRIVE
1C6503
RAD
MIRROR
4.ev
4.8y
i
S\S\
hee
Lov
O.5ms
2V/Giv
ims
O0.Sv/
DIV.
<b
<a
a
a
5
i
ee
OTN.
Tay
DAs
eee
avr
oQGa-w
-zranreaonod
all
1C6503
TDA88B09T/C2
RADIAL
ERROR
SIGNAL
PROCESSOR
3-7
2

Related product manuals