EasyManua.ls Logo

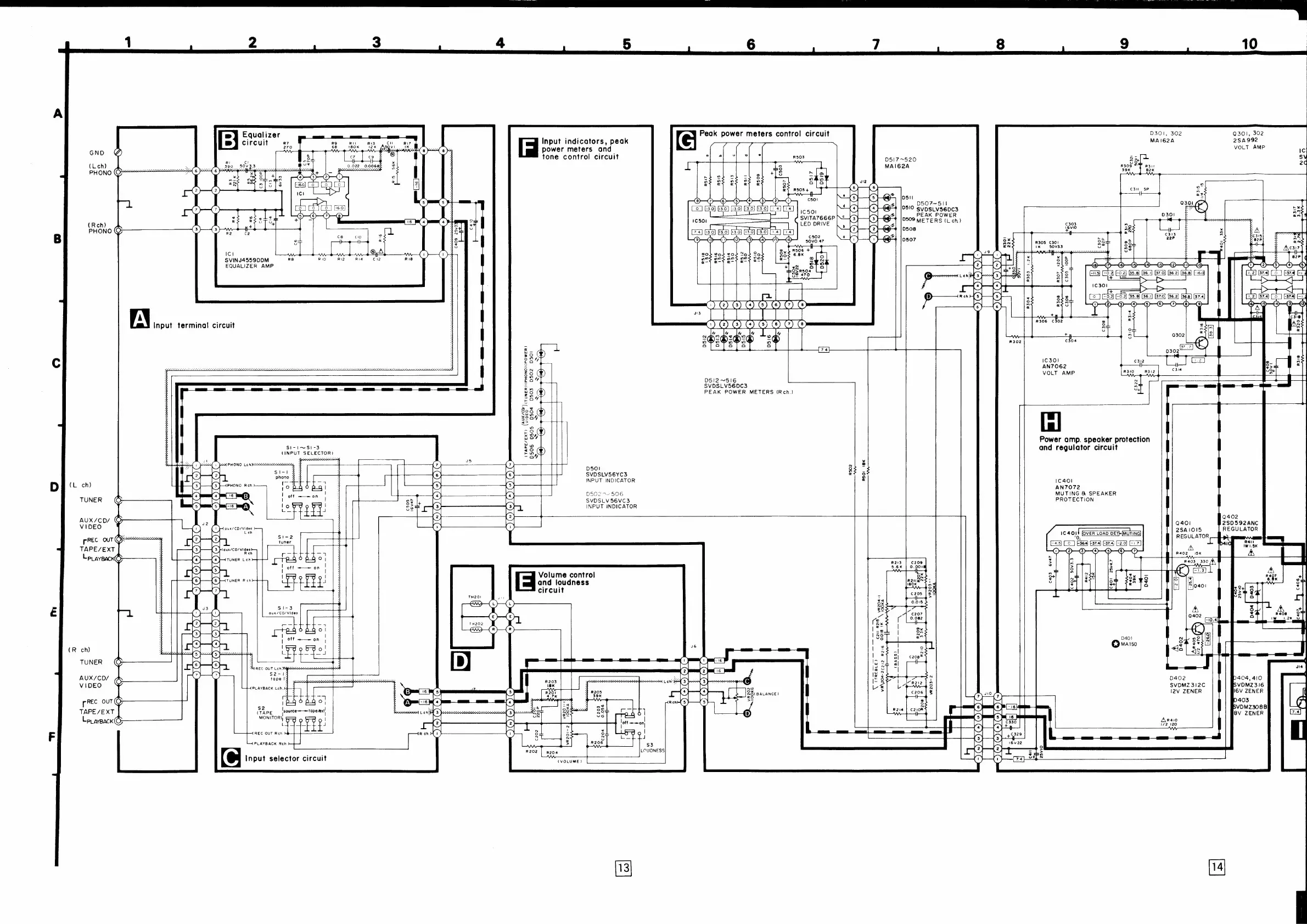
Technics SU-Z35 - Schematic Diagram

Technics SU-Z35
20 pages
Print Icon
To Next Page IconTo Next Page
To Next Page IconTo Next Page
To Previous Page IconTo Previous Page
To Previous Page IconTo Previous Page
Loading...
D
(L
ch)
(R
ch)
Equalizer
circuit
270
‘Sybian
seater,
Input
indicators,
peak
F
power
meters
and
0503
D502
DSO!
(AUX
/CI
crapevext)
(AUx26%)
tuner)
(PHONO)
(POWER)
0506
0505
0504
oN
Peak
power
meters
control
circuit
tone
control
circuit
a
4
0512
~516
SVDSLV560C3
PEAK
POWER
METERS
(Rch.)
yay
GND
(Leh)
TOE!
AP
SERENA
CNS
SNARIR,
5
APRA
RRRRRES
CR
GS
PHONO
Geet
(Rech)
PHONO
©
SVINJ4559DDM
EQUALIZER
AMP
terminal
circuit
Si-lI~Si-3
(INPUT
SELECTOR)
TUNER
AUX/CD/
@
DSOI
SVDSLV56YC3
=
=
Cg)
(ae)
Pests
red
ee
ce
INPUT
INDICATOR
0502506
OOOO
)G)
OOMMOOAG)
VIDEO
rRec
OUT
(G
TAPE/EXT
LpL_aveack©
$i-3
E
aux/CD/Video
TUNER
:
Aiaec
Our
Len
peteiiccessenssindpn
AUX/CD/
&
1006
11
yedamoumaon
VIDEO
PLAYBACK
Lch.
e
REC
OUTO
bd
TAPE/EXT
OF
ee
Isource-=—=
tape/ex!
Lo
WEAR
MONITOR)
t
REC
OUT
Reh
PLAYBACK
Rch
Input
selector
circuit
SVDSLV
56VC3
INPUT
INDICATOR
[a
and
loudness
circuit
Volume
control
oO
x
Oi
BALANCE?
S
R204
AWWA
(VOLUME)
SVITA7666P
LED
DRIVE
R502
R50:
16K
20
c2u.R
vA\204-2¢212
R216
0.018
1K
TIREBLE)
scar
c
vR204-1
lOOKA
\
D517~520
MAI62A
R214
10
D301,
302
Q301,
302
MAI62A
2SA992
VOLT
AMP
C3
SP
D507~511
2510
sypSLV56DC3
PEAK
POWER
0509
METERS
(L
ch)
0508
0507
R305
C30!
ik
50V33
R307
120K
€305
100P
CHOCO)
IC301
AN7062
VOLT
AMP
H
Power
amp.
speaker
protection
and
regulator
circuit
1c40l
AN7072
MUTING
&
SPEAKER
PROTECTION
Q402
2SD592ANC
REGULATOR
Q40!
2SA
1015
1c
4o)f
[ovER
LORD
CET
MUTING
E45
(07
364
7.4)
F374}
E20]
Ez
6V4a7
cag3
SVDMZ312C
12V
ZENER
N
c210%

Related product manuals