EasyManua.ls Logo

Teka CNL 2000 - Page 13

Teka CNL 2000
Print Icon
To Next Page IconTo Next Page
To Next Page IconTo Next Page
To Previous Page IconTo Previous Page
To Previous Page IconTo Previous Page
Loading...
13
D
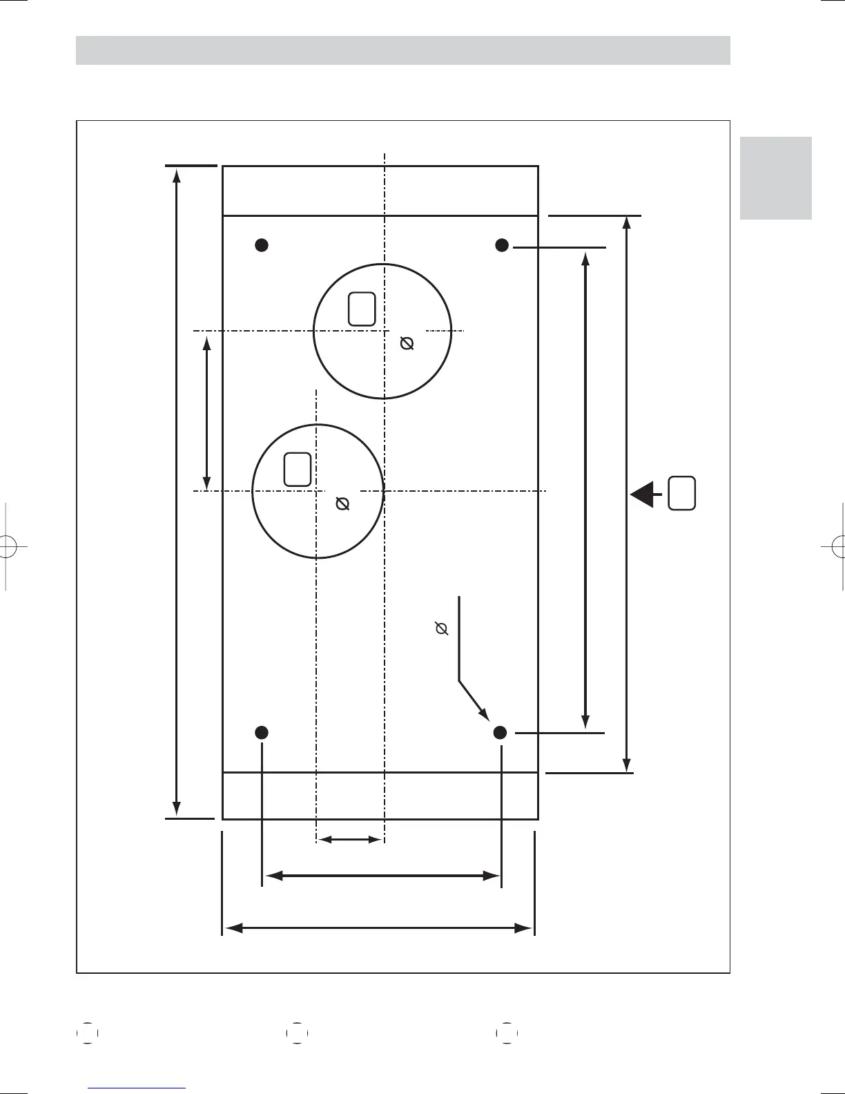
Bohrschablone für den einbau in das küchenmöbel
280
214
599
152
132
132
458
599
4 x 8
63
A
C
B
A
Abzug für zwei Motoren Abzug für einen Motor Frontabdeckung der
Dunstabzugshaube
B C
2-TL 62/92-CNL 1000/2000 (D) 2/9/02 17:12 Página 13

Related product manuals