EasyManua.ls Logo

Teka CNL 2000 - Page 25

Teka CNL 2000
Print Icon
To Next Page IconTo Next Page
To Next Page IconTo Next Page
To Previous Page IconTo Previous Page
To Previous Page IconTo Previous Page
Loading...
25
F
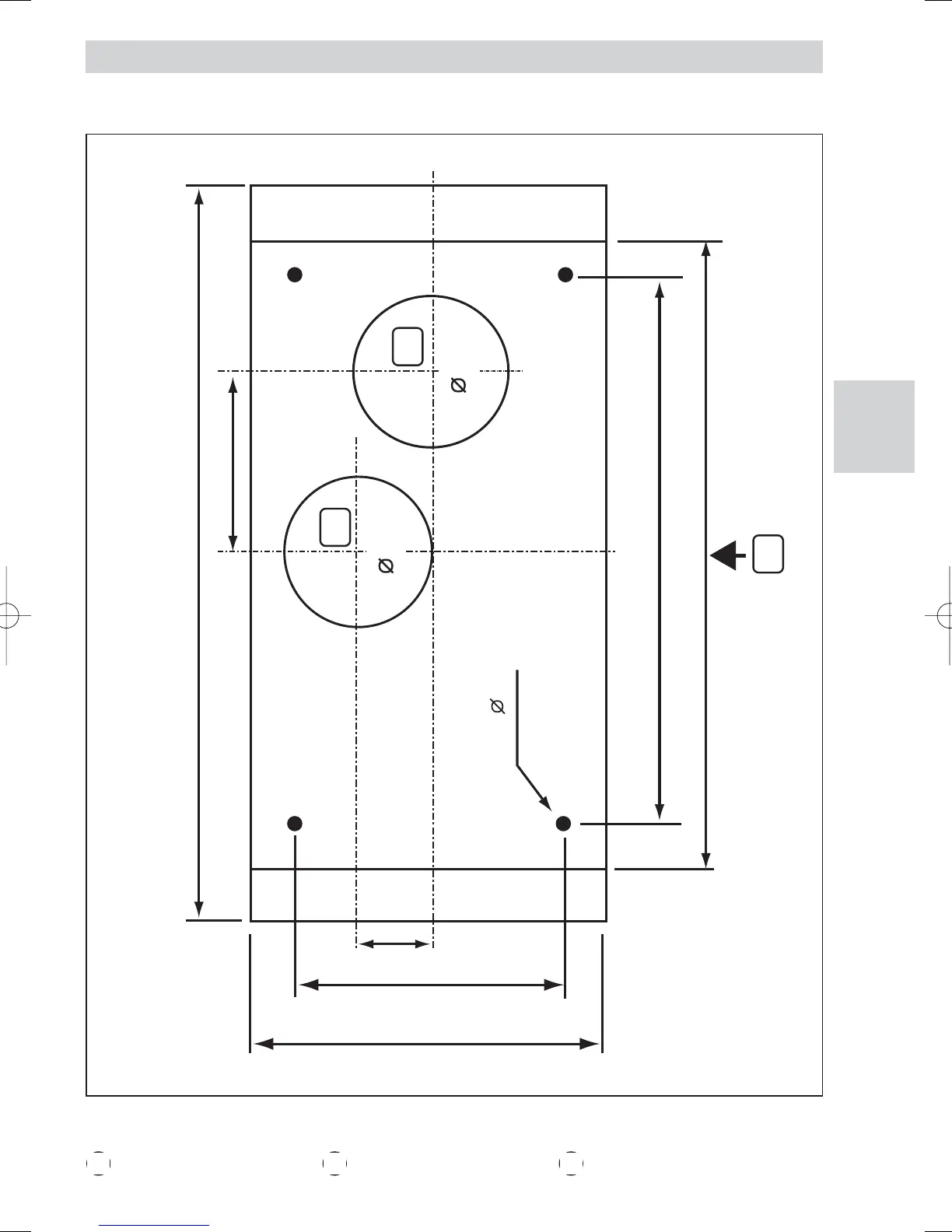
Dessin des vis pour la mise en place dans le meuble
280
214
599
152
132
132
458
599
4 x 8
63
A
C
B
A
Sortie pour 2 moteurs Sortie pour 1 moteur Partie frontale de la hotte.
B C
4-TL 62/92-CNL 1000/2000 (F) 2/9/02 17:18 Página 25

Related product manuals