EasyManua.ls Logo

Teka CNL 2000 - Page 7

Teka CNL 2000
Print Icon
To Next Page IconTo Next Page
To Next Page IconTo Next Page
To Previous Page IconTo Previous Page
To Previous Page IconTo Previous Page
Loading...
E
7
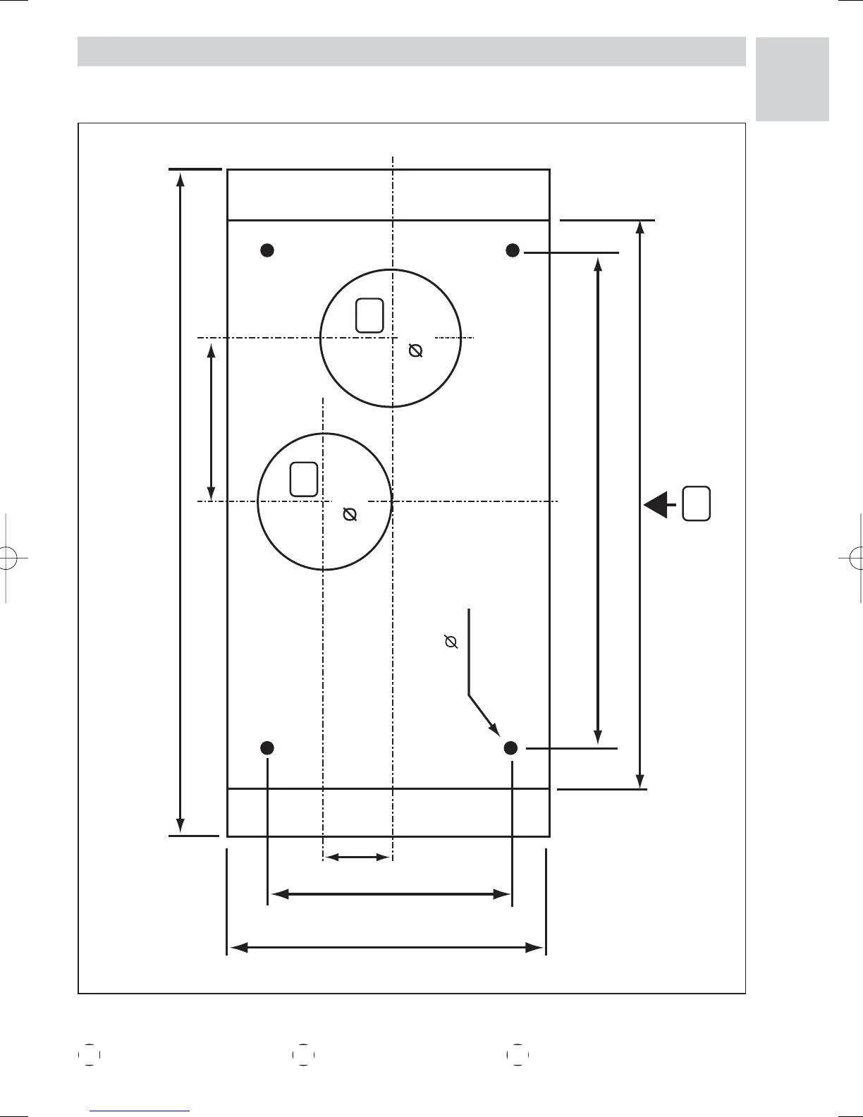
Plantilla de taladros para colocación en mueble
280
214
599
152
132
132
458
599
4 x 8
63
A
C
B
A
Salida para 2 motores Salida para 1 motor Frontal Campana
B C
1-TL 62/92-CNL 1000/2000 (E) 2/9/02 17:10 Página 7

Related product manuals