EasyManua.ls Logo

Teka TL-92 - Page 13

Teka TL-92
Print Icon
To Next Page IconTo Next Page
To Next Page IconTo Next Page
To Previous Page IconTo Previous Page
To Previous Page IconTo Previous Page
Loading...
13
D
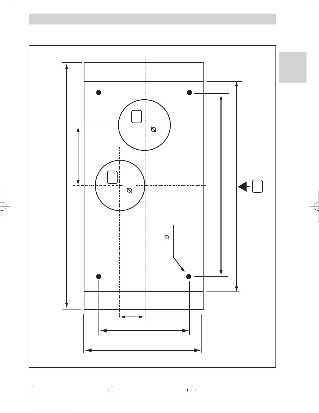
Bohrschablone für den einbau in das küchenmöbel
280
214
599
152
132
132
458
599
4 x 8
63
A
C
B
A
Abzug für zwei Motoren Abzug für einen Motor Frontabdeckung der
Dunstabzugshaube
B C
2-TL 62/92-CNL 1000/2000 (D) 2/9/02 17:12 Página 13

Related product manuals