EasyManua.ls Logo

Teka TL-92 - Page 25

Teka TL-92
Print Icon
To Next Page IconTo Next Page
To Next Page IconTo Next Page
To Previous Page IconTo Previous Page
To Previous Page IconTo Previous Page
Loading...
25
F
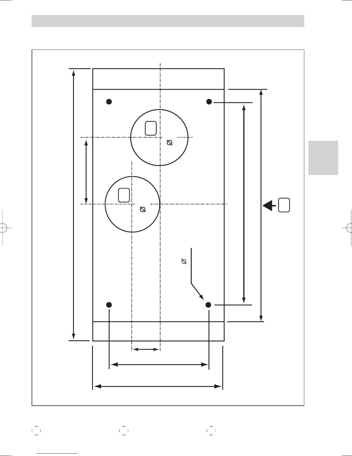
Dessin des vis pour la mise en place dans le meuble
280
214
599
152
132
132
458
599
4 x 8
63
A
C
B
A
Sortie pour 2 moteurs Sortie pour 1 moteur Partie frontale de la hotte.
B C
4-TL 62/92-CNL 1000/2000 (F) 2/9/02 17:18 Página 25

Related product manuals