EasyManua.ls Logo

Tempstar G9MXT - Page 26

Default Icon
58 pages
Print Icon
To Next Page IconTo Next Page
To Next Page IconTo Next Page
To Previous Page IconTo Previous Page
To Previous Page IconTo Previous Page
Loading...
Figure 27
Downflow Return Air
Configurations and Restrictions
/ _fl_ RETURN
AIR
SIDE RETURN
NOT PERMI]q'ED
FOR ANY MODEL
SIDE RETURN
NOT PERMITTED
FOR ANY MODEL
O
®
®
Figure 28
i s q LY L10F033
Upflow Return Air Configurations
and Restrictions
SUPPLY _"
............._!RJ,_....................
RETURN
AIR
® ®
® ®
O
®
RETURN
AIR
RETURN _" _ UPFLOW
AIR | _1_ RETURN AIR
/ RESTRICTIONS L10F032
Horizontal Return Air
Figure 29
Configurations and Restrictions
HORIZONTAL TOP
RETURN NOT
PERMITTED FOR
ANY MODEL
RETURN
AIR
)
..............................i
SUPPLY
AIR i,
* NOTE: RESTRICTION SAME FOR -/
HORIZONAL LEFT 'RETURN
AIR
HORIZONAL
RETURN AIR
RESTRICTIONS
SIDE RETURN AIR NOT PERMITTED FOR 2000 CFM AND
ABOVE OF AIR FLOW
L10F034
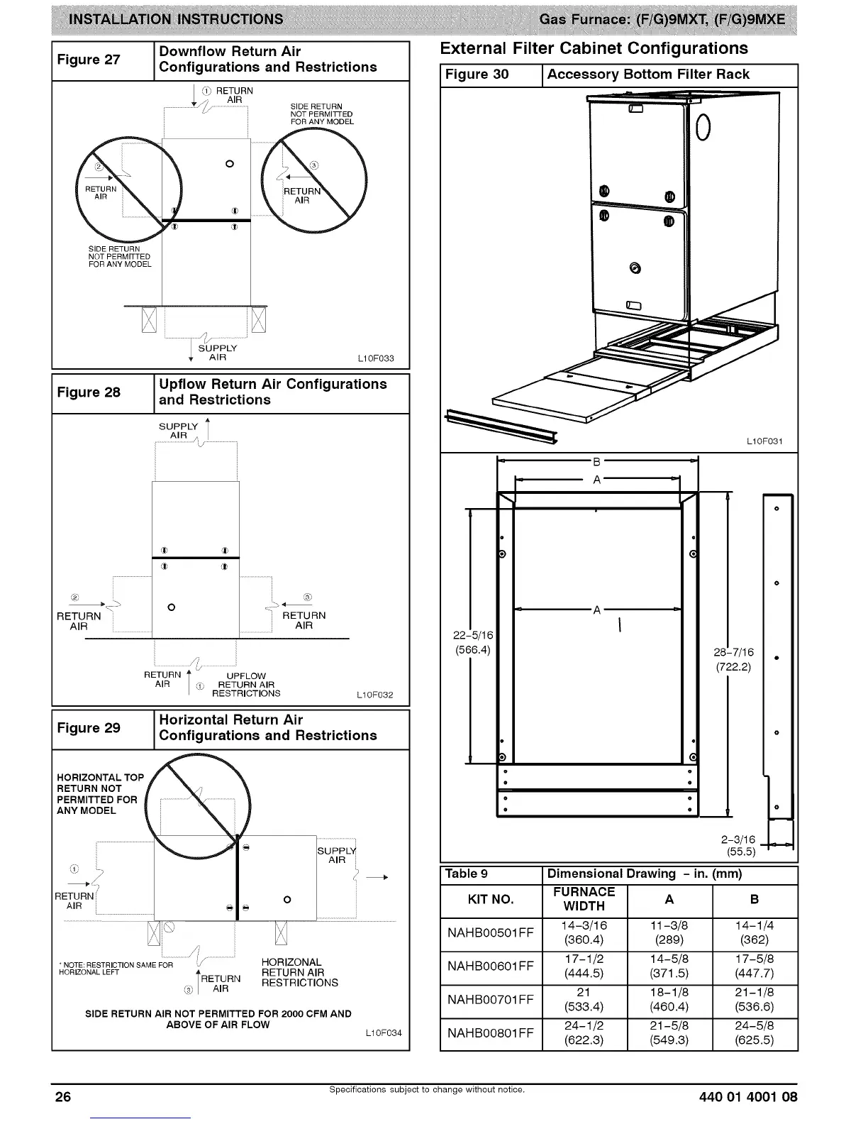
External Filter Cabinet Configurations
Figure 30 _Accessory Bottom Filter Rack
0
® @
22-5/16
(566.4)
)
,)
- ,)
o
o
o
o
B
A
A
28-7/16
(722.2)
e
e
e
e
2-3/t 6
(55.5)
L10F031
Table 9 Dimensional Drawing - in. (mm)
FURNACE
KIT NO. A B
WIDTH
NAHB00501FF 14-3/16 11-3/8 14-1/4
(360.4) (289) (362)
NAHB00601FF 17-1/2 14-5/8 17-5/8
(444.5) (371.5) (447.7)
21 18-1/8 21-1/8
NAHB00701FF
(533.4) (460.4) (536.6)
NAH B00801FF 24-1/2 21-5/8 24-5/8
(622.3) (549.3) (625.5)
m
o
o
26 Specifications subject to change without notice. 440 01 4001 08

Related product manuals