EasyManua.ls Logo

TermaTech TT23RG - Page 60

TermaTech TT23RG
Print Icon
To Next Page IconTo Next Page
To Next Page IconTo Next Page
To Previous Page IconTo Previous Page
To Previous Page IconTo Previous Page
Loading...
60
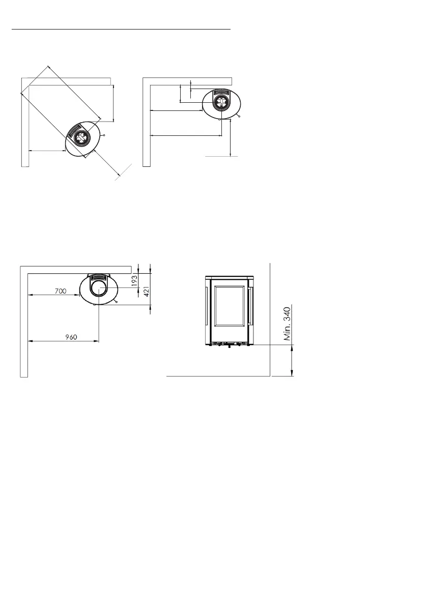
TT23RG +TT23RGS: Distances de sécurité aux matériaux combustibles -
Si installation avec tuyaux double paroi isolés*:
50mm à l’arrière
700mm sur les cotés
490mm monté à 45 ° dans un angle
1100mm devant
TT23RG/ TT23R G S
TT23RG/ TT23R G S
520
520
1046
1273
1100
100
700
960
283
1100
490
490
1003
1230
1100
50
700
960
233
1100
*ces distances sont uniquement valables pour le poêle, les tuyaux de raccordement sont soumis à
d’autres distances/réglementations.
TT23RGW: DISTANCES MINIMALES AUX MATÉRIAUX COMBUSTIBLES :
NB : Le poêle doit être installé sur un mur ININFLAMMABLE seulement. Autres distances :
700mm aux côtes
340mm du sol au bas du poêle
1100mm devant
Distances de sécurité aux matériaux inammables
Il n’y a pas de réglementation à ce niveau, mais nous conseillons un minimum de 100mm der-
rière et 300mm de chaque côté du poêle an de permettre d’une part au poêle de dégager la
chaleur et d’une autre part de faciliter le nettoyage autour du poêle. (hors TT23RGW)
Exigences au conduit/la cheminée
La réglementation en vigueur concernant la cheminée ou le conduit doit être respectée. Veuillez
consulter un professionnel pour être sûr. Les éléments ci-après sont seulement les exigences
nécessaires pour assurer le bon fonctionnement du poêle.
Le conduit doit monter susamment haut pour que les conditions de tirage soient correctes et
que la fumée ne gêne pas les voisins. Le bon tirage est indispensable pour que le poêle fonctionne
comme prévu et que la combustion soit le plus propre et respectueuse de l’environnement que
possible. Une cheminée ou un conduit doit être au moins 3,5m de haut, mesuré du haut du poêle
jusqu’en haut du conduit à l’extérieur. Le diamètre intérieur du conduit doit être au minimum
Ø150mm. Tous les joints et sorties doivent être étanches et le conduit doit être en mesure de
fournir un tirage de 12Pa minimum.
Il est possible de raccorder le poêle à une cheminée qui est reliée à d’autres appareils.
Les conditions spéciques doivent cependant être évaluées par un installateur professionnel.
Installation du poêle avec évacuation de fumées par l’arrière (TT23RG & TT23RGS)
Enlevez les caches rondes sur l’arrière du poêle jusqu’au fond de la chambre de combustion an
de libérer le passage au tuyau de raccord. Dévissez ensuite la cache visée sur le foyer. La buse
universel montée sur la sortie supérieure du poêle est maintenant dévissée et montée sur l’arrière
du poêle. La cache dévissée de l’arrière du foyer est maintenant placée et visée pour fermer la

Related product manuals