EasyManua.ls Logo

Thermics CTOP2WF - Page 20

Thermics CTOP2WF
24 pages
Print Icon
To Next Page IconTo Next Page
To Next Page IconTo Next Page
To Previous Page IconTo Previous Page
To Previous Page IconTo Previous Page
Loading...
20
F
E
D
C
21 53 4
B
A
1 2 3 4 5
76 98
F
E
D
C
6 7 8 9
B
A
DRAFT.
CHECKED BY
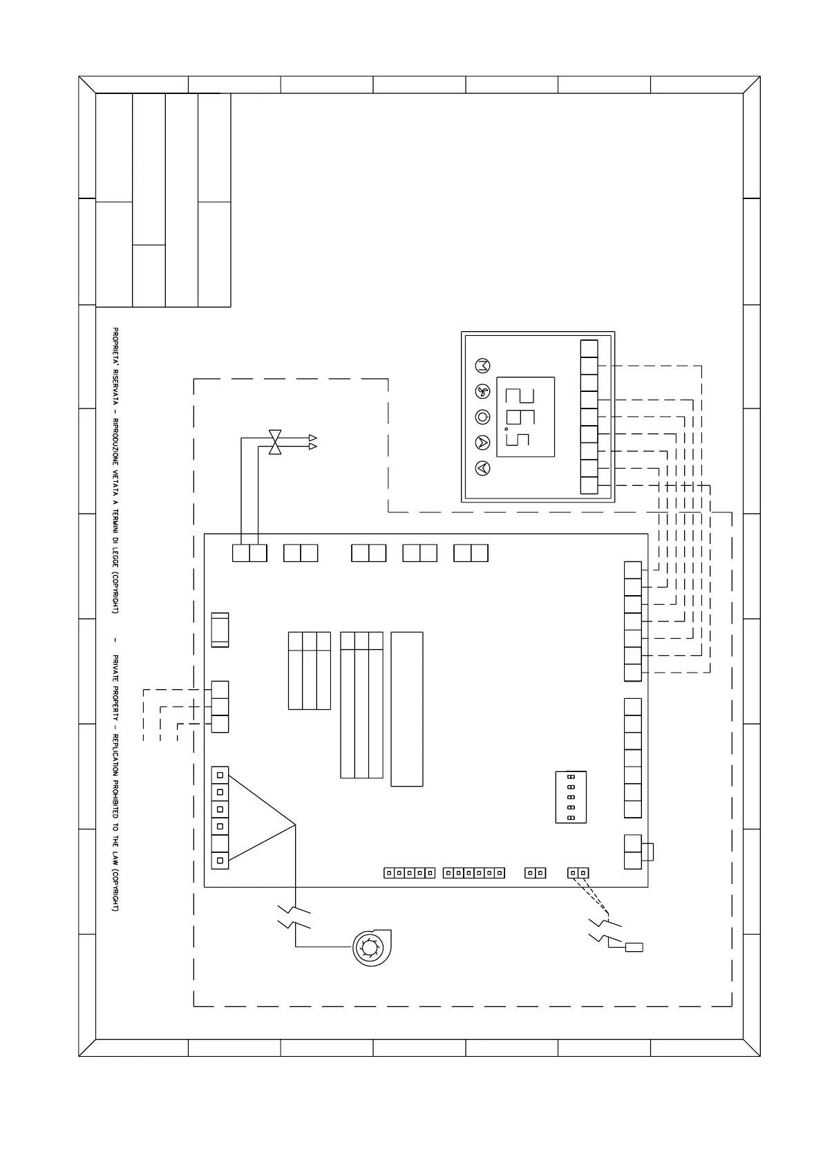
ACCESSORIES
FILE NAME
PAGE N.
DIRECTORY
DATE
G
G
A.FRIZZIERO A.FRIZZIERO
3/4
STAND ALONE
N HI
MED LOW
VAL1
VAL2
L
WALL PAD
LOW
VAL1
VAL2
TO SLAVE UNIT
DELAY
MED
HI N
CONTACT
L
N
PUMP
L
N
FILTER
L
N
HEATER
N
COOLING
L
HEATING
FUSE
L
N
GND
IN AC230V
DC MOTOR
ROOMCOM1STEP1
DIP SWITCH
321
ON
ME
54
WATER
N
L
230V-50 Hz
DIP SWITCH :
1 ON
2 ON
3 ON
4 OFF
5 OFF
SONDA DI
TEMPERATURA
SCAMBIATORE (2)
(OPTIONAL)
CONTATTO
FINESTRA(1)
Ventilconvettore
CTOP2WF
1 2 3 4 5 6 7 8 9
REVERSO + CTOP2WF + V2AM
AC220V-L
AC220V-N
HIGH
MED
OPEN
CLOSE
LOW
OPEN
CLOSE
HEAT VALVE
COOL VALVE
DOMOTICA-ITA
19/10/2021
filo blu
filo marrone
filo grigio
filo nero
alla pompa di calore o unità
esterna come
contatto libero (vedi nota "A")
FARE ATTENZIONE A NON
INVERTIRE FASE E NEUTRO
SIA NELL'UNITÀ MASTER
CHE NELL'UNITÀ SLAVE.
(2) LA SONDA DEVE ESSERE POSIZIONATA, IN
PROSSIMITÀ DELL'INGRESSO, COME INDICATO NELLE
ISTRUZIONI. MISURERA' LA TEMPERATURA
DELL'ACQUA E IN RISCALDAMENTO IL VENTILATORE
GIRERA' SOLO SE LA TEMPERATURA E' SUPERIORE AI
35°C (FUNZIONE DI TERMOSTATO DI MINIMA).
(1) È POSSIBILE RIMUOVERE IL PONTE ELETTRICO DI
FABBRICA E UTILIZZARE IL CONTATTO COME CONTATTO
FINESTRA. IN QUESTO MODO, SE IL CONTATTO È CHIUSO,
L'UNITÀ FUNZIONERÀ SECONDO LE SUE IMPOSTAZIONI.
INVECE SE IL CONTATTO VIENE APERTO, L'UNITÀ SI
SPEGNERA' DOPO 30 SECONDI. QUANDO IL CONTATTO SI
RICHIUDE, L'UNITÀ TORNERA' A FUNZIONARE SECONDO
LE SUE IMPOSTAZIONI.
SW1~3: impostazione velocità del motore
descrizione DIP switch
SW4
OFF
ON
tipo di controllo
termostato
telecomando ad infrarossi
SW5
OFF
ON
tipo di impianto
2 tubi
4 tubi
impostazione standard come indicato sopra
fare riferimento al manuale per impostazioni diverse
PE
L1
N

Related product manuals