EasyManua.ls Logo

Thermo Electron 6540 - Page 40

Default Icon
46 pages
Print Icon
To Next Page IconTo Next Page
To Next Page IconTo Next Page
To Previous Page IconTo Previous Page
To Previous Page IconTo Previous Page
Loading...
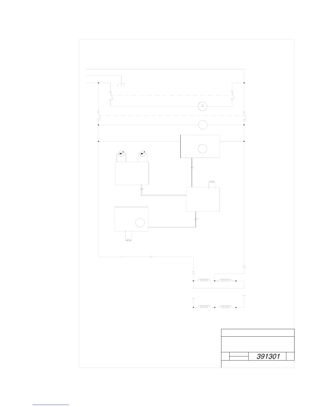
3177885 Thelco Oven 11-3Thermo Electron Corporation
Section 11
Electrical Schematics
CPU
HIGH LIMIT PCB
POWER SUPPLY
BLACK
GREEN
WHITE
HR1-3
HR1-3
HR1-1
HR1-2
___
EMR
DISPLAY PCB
EMR-1
SSR-1
HEATER CONNECTION
FOR 230 V.
HEATER CONNECTION
FOR 115 V.
A
FULL
1OF1
D
DWG. NO.
REV.
SIZE
SCALE
SHEET
DWG. TITLE
CONTROL WIRING DIAGRAM
THELCO DIGITAL OVENS
MECHANICAL AND GRAVITY
RTD
LINE
115OR230V.
50/60 HZ.
BLOWER MOTOR
POWER SWITCH
S1
CHAMBER LIGHT
INNER CHAMBER
LIGHT SWITCH
S2
16 COND
HEAT ON
LED
HIGH LIMIT
LED
TEMPERATURE
SENSOR
______
___
5 COND
16 COND
HIGH LIMIT
SENSOR
___
SSR
M1
1
1
2
2
5
4
4
5
HR1-1
HR1-2