EasyManua.ls Logo

TMC 30E - Page 170

Default Icon
182 pages
Print Icon
To Next Page IconTo Next Page
To Next Page IconTo Next Page
To Previous Page IconTo Previous Page
To Previous Page IconTo Previous Page
Loading...
Injection Molding Machine Appendix C
C-2 V3.0
21D11M01Y
10h25m10s
20°C
MOLD PROTECTION T.
PARAMETER
P233
V298
4'S
F2F1
MENU
01
CLAMP
CLOSE MONITOR T.
OPEN MONITOR T.
PTmm
OPEN END
PT37
Pbar
P160
PT46
V%
1'S
V240
3W
Pbar
SUPPORT
MOLD
F3 F4
MOLD ADJ.
<TC325>
<TC324>
<TC323>
F5 F6
CHANGE
LOG
CYCLE T.
INTERVAL T.
TENANCE
MAIN-
F7 F8
EXTERN
I/O
<PT58/TC >
<TC326>
<TC321>
100.0mm
50.0mm
P163
V243
DECOMPRESS.
V245
P209
PT82
V289
3'S
PT29
P165
2'S
P207
PT47
P230
PT48
V244
PT36
P164
1'S
PT35
PT30
P208
PT31
P161
ACTION STATUS
2'S
V241
M:
3'S
V242
1.0mm
LOW P/V
4'S
V288
V287
210.0mm
PTmm
V%
PT32
P162
0/ 0
0/ 0 0/ 0
CLOSE ENDLOCK
V246
P1: P2:
0/ 0V1: V2:
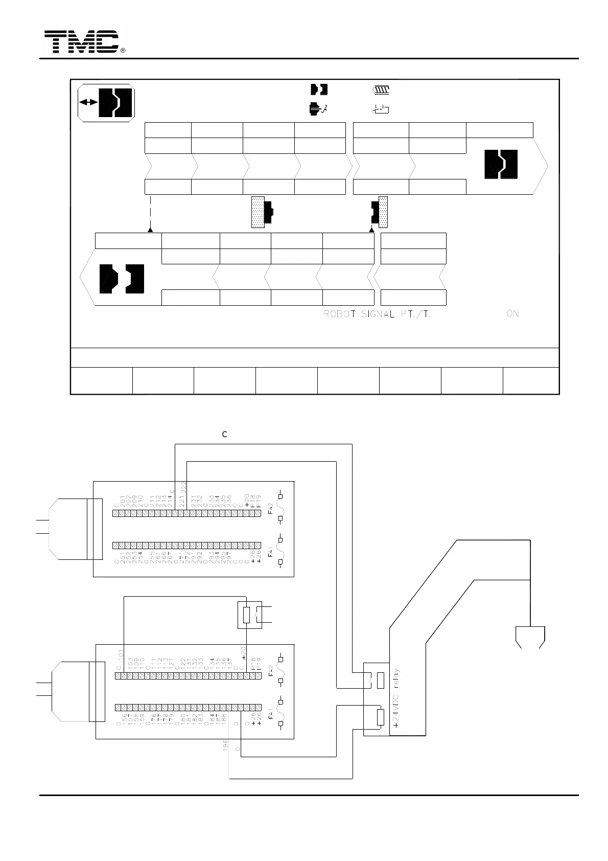
2 Wiring example
222
IN IO BOX
C
N
/
I
O
L
M90 IO1
IN MAIN CABINET
C
N
/
I
O
L
M90 IO2
196
(fitted by robot provider)
0
GATE CLOSED