EasyManua.ls Logo

Toto CST243 - Rough-In Dimensions; Model Dimension Charts

Toto CST243
32 pages
Print Icon
To Next Page IconTo Next Page
To Next Page IconTo Next Page
To Previous Page IconTo Previous Page
To Previous Page IconTo Previous Page
Loading...
28
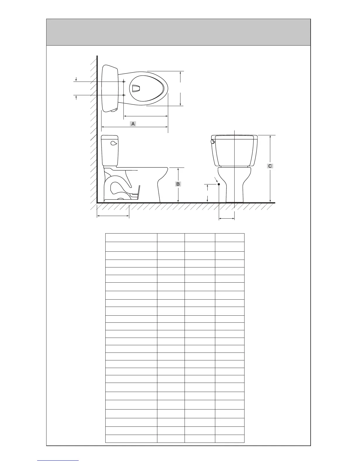
Model A B C
CST424EF(G) 28-1/4” 16-1/8” 33-1/2”
CST454CEF(G) 28-1/2” 16-1/8” 29-1/2”
CST454CUF(G) 28-1/2” 16-1/8” 29-1/2”
CST743E 26-3/8” 14-5/8” 28-1/2”
CST743ED 26-3/8” 14-5/8” 28-1/2”
CST744EL 28” 16-1/2” 30-1/2”
CST744ELD 28” 16-1/2” 30-1/2”
CST744EF.10 28” 16-1/8” 30-1/8”
CST744EFD.10 28” 16-1/8” 30-1/8”
CST744E(G) 27-3/4” 14-5/8” 28-1/2”
CST744ED(G) 27-3/4” 14-5/8” 28-1/2”
CST754EF(N) 28-1/8” 16-1/8” 32-1/2”
CST784EF 28-1/2” 16-1/8” 32-1/2”
CST744E(G)N 28-3/8” 14-5/8” 29-1/8”
CST743EN 26-5/8” 14-5/8” 29-1/8”
CST744ELN 28-3/8” 16-1/2” 31-1/8”
CST744EFN.10 28-5/8” 16-1/8” 30-3/4”
CST494CEMF(G) 28-3/4” 16-1/8” 30-1/4”
CST243EF 26-7/8” 16-1/8” 30”
CST244EF 28-3/4” 16-1/8” 30”
CST423EF(G) 26-3/8” 16-1/8” 33-1/2”
CST453CEF(G) 26-1/2” 16-1/8” 29-1/2”
CST453CUF(G) 26-1/2” 16-1/8” 29-1/2”
CST404CEF(G) 28-1/2” 16-1/8” 31-1/4”
CST404CUF(G) 28-1/2” 16-1/8” 31-1/4”
ROUGH-IN DIMENSIONS / BOSQUEJO /
ROBINETTERIE BRUTE
* Recommended dimensions
* Dimensiones recomendadas
* Dimensions recommandées
14”
(355mm)
5-1/2”
(140mm)
18-1/2” (470mm)
8”* (202mm)
1/2” Supply
Suministro
Alimentation
10” (254mm)
12” (305mm)
6”*
(153mm)
or

Related product manuals