EasyManua.ls Logo

Toto CST243EF - Page 16

Toto CST243EF
32 pages
Print Icon
To Next Page IconTo Next Page
To Next Page IconTo Next Page
To Previous Page IconTo Previous Page
To Previous Page IconTo Previous Page
Loading...
14
ESPAÑOL
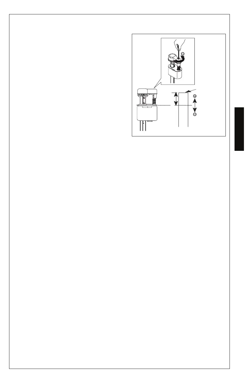
Para una Válvula de Llenado Tipo A y C:
Refere a la marca para el nivel de agua
(WL) en la pared interior del tanque.
Permita que el agua llene el tanque. Gire
el tornillo de ajuste en el sentido de las
agujas del reloj en la dirección (+) para
aumentar la altura del nivel del agua. (ver
Ilustración 1). Gire el tornillo en sentido
contrario a las agujas del reloj en la direc-
ción (-) para disminuir la altura del nivel
del agua. Tire la cadena para verificar el
nivel correcto del ajuste si es necesario.
Para la Válvula Tipo B:
No hay ajustes de niveles de agua. La
válvula de llanado nado se ha predeter-
minado de fábrica.
Parte Supe-
rior del Tubo de
Rebosadero/
Tubo de Relleno
W L
Ill. 1
CUIDADO Y LIMPIEZA
Ajuste del Nivel del Agua (continuación)

Related product manuals