EasyManua.ls Logo

Trane 4PXCAU24BS3HAA - Page 5

Trane 4PXCAU24BS3HAA
8 pages
Print Icon
To Next Page IconTo Next Page
To Next Page IconTo Next Page
To Previous Page IconTo Previous Page
To Previous Page IconTo Previous Page
Loading...
18-AD32D1-4E-EN 5
Installer’s Guide
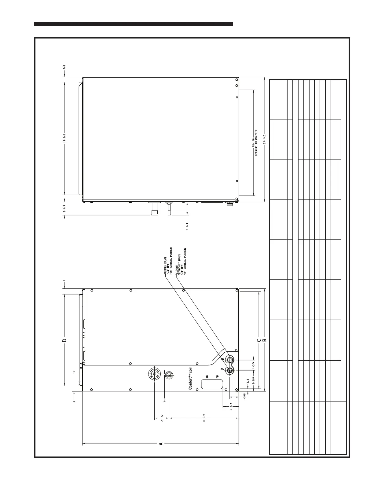
MODEL
4PXCAU24BS3
4PXCAD24BS3
4PXCAU32BS3
4PXCBU24BS3
4PXCBD24BS3
4PXCBU36BS3
4PXCBD36BS3
4PXCCU36BS3
4PXCCD36BS3
4PXCBU42BS3
4PXCBD42BS3
4PXCBU48BS3
4PXCBD48BS3
4PXCCU42BS3
4PXCCD42BS3
4PXCCU48BS3
4PXCCD48BS3
4PXCCU60BS3
4PXCCD60BS3
WEIGHT (LBS.) 39 43 42 54 56 61 64 73
REFRIGERANT CONTROL TXV (NON-BLEED)
HEIGHT "A" (IN.) 17-1/2 22-1/2 17-1/2 22-1/2 22-1/2 26-7/8 26-7/8 30-3/4
OVERALL WIDTH "B" (IN.) 14-1/2 14-1/2 17-1/2 17-1/2 21 17-1/2 21 21
OPENING WIDTH "C" (IN.) 13-5/8 13-5/8 16-5/8 16-5/8 20-1/8 16-5/8 20-1/8 20-1/8
TOP OPENING "D" 12-3/4 12-3/4 15-3/4 15-3/4 19-1/4 15-3/4 19-1/4 19-1/4
GAS CONNECTION 3/4 3/4 3/4 7/8 7/8 7/8 7/8 7/8
LIQUID CONNECTION 3/8 3/8 3/8 3/8 3/8 3/8 3/8 3/8
MATCHED FURNACE WIDTH
(NO ADAPTER REQUIRED)
14-1/2 14-1/2 17-1/2 17-1/2 21 17-1/2 21 21
DRAIN PAN PLASTIC
From Dwg.
D345397 RevE
Outline Drawing for Upflow models: 4PXCAU24BS3HAA, 4PXCAU32BS3HAA, 4PXCBU24BS3HAA, 4PXCBU36BS3HAA, 4PXCCU36BS3HAA, 4PXCBU42BS3HAA, 4PXCCU42BS3HAA,
4PXCBU48BS3HAA, 4PXCCU48BS3HAA, 4PXCCU60BS3HAA, and Downflow models: 4PXCAD18BS3HDA, 4PXCBD18BS3HDA, 4PXCAD24BS3HDA, 4PXCBD24BS3HDA, 4PXCBD36BS3HDA,
4PXCCD36BS3HDA, 4PXCBD42BS3HDA, 4PXCCD42BS3HDA, 4PXCBD48BS3HDA, 4PXCCD48BS3HDA, 4PXCCD60BS3HDA