EasyManua.ls Logo

Trane 4PXCAU24BS3HAA - Page 6

Trane 4PXCAU24BS3HAA
8 pages
Print Icon
To Next Page IconTo Next Page
To Next Page IconTo Next Page
To Previous Page IconTo Previous Page
To Previous Page IconTo Previous Page
Loading...
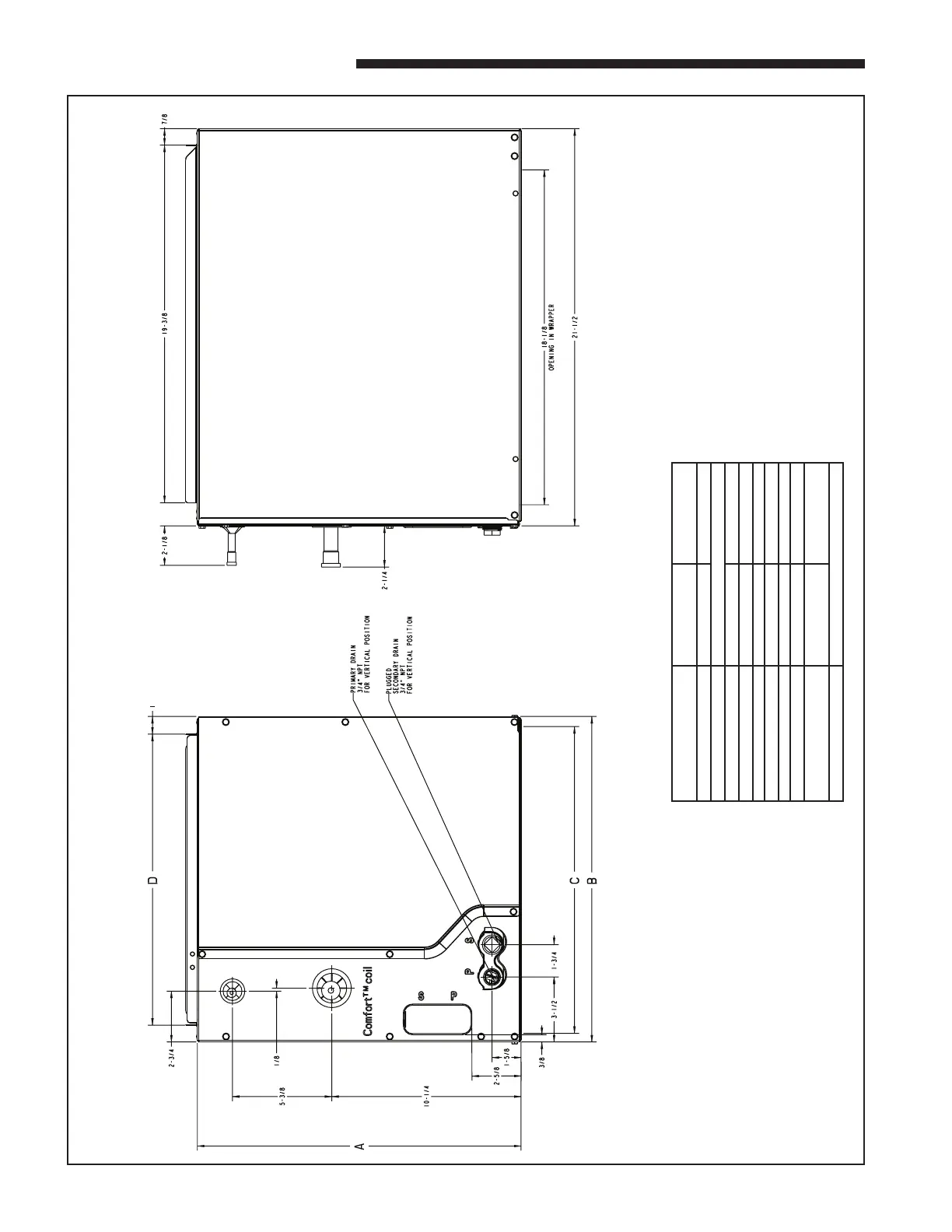
6 18-AD32D1-4E-EN
Installer’s Guide
From Dwg. D345398 RevC
MODEL
4PXCBU30BS3
4PXCBD30BS3
4PXCCU30BS3
4PXCCD30BS3
WEIGHT (LBS.) 47 49
REFRIGERANT CONTROL TXV (NON-BLEED)
HEIGHT (IN.) 17-1/2 17-1/2
OVERALL WIDTH (IN.) 17-1/2 21
OPENING WIDTH (IN.) 16-5/8 20-1/8
TOP OPENING 15-3/4 19-1/4
GAS CONNECTION 3/4 3/4
LIQUID CONNECTION 3/8 3/8
MATCHED FURNACE WIDTH
(NO ADAPTER REQUIRED)
17-1/2 21
DRAIN PAN PLASTIC
Outline Drawing for Upflow models: 4PXCBU30BS3HAA, 4PXCCU30BS3HAA, and
Downflow models: 4PXCBD30BS3HDA, 4PXCCD30BS3HDA