EasyManua.ls Logo

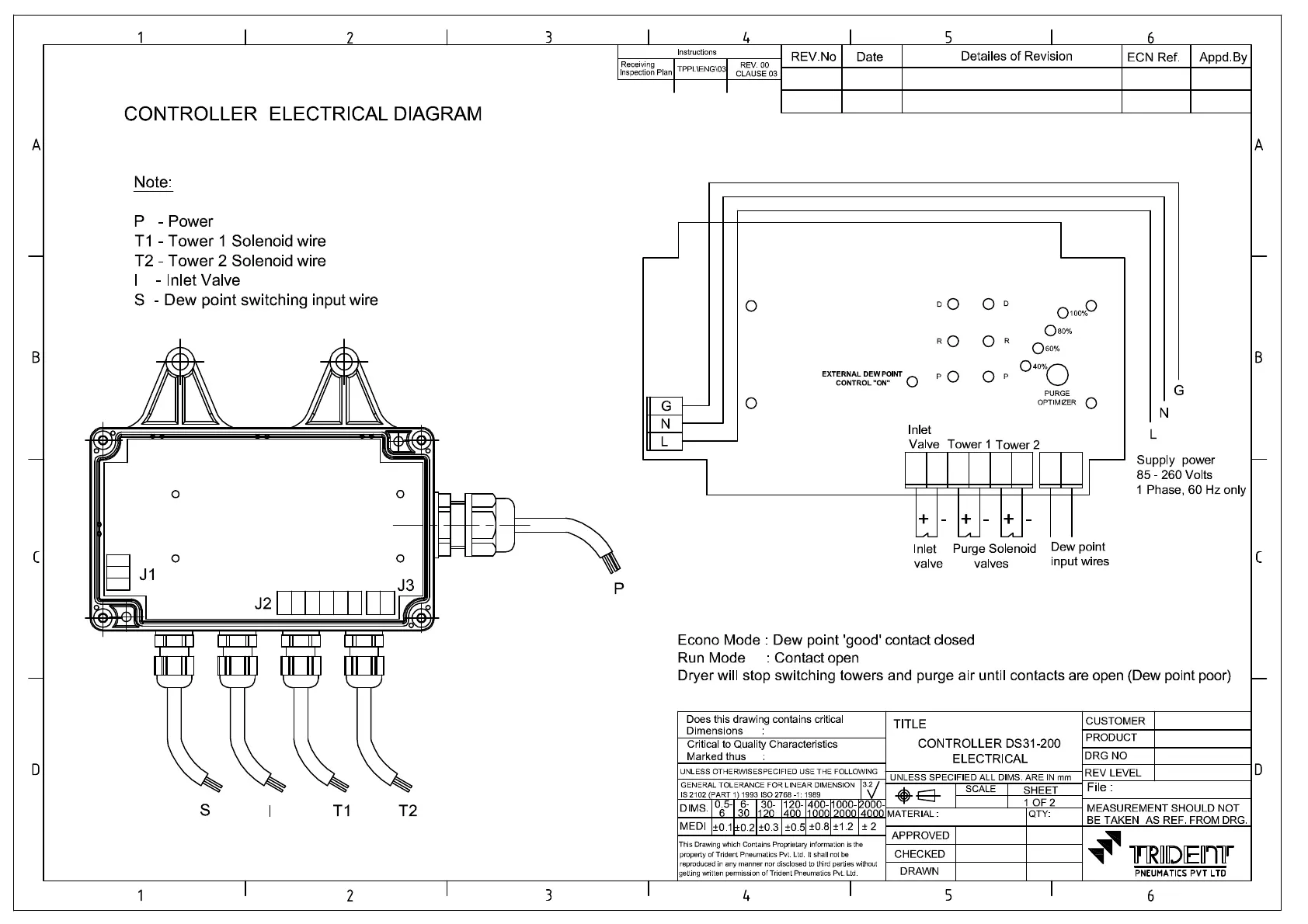
Trident Dryspell Series - Controller Electrical Diagram (DS31-200); Econo Mode: Dew point good contact closed; Run Mode: Contact open

Trident Dryspell Series
25 pages
Print Icon
To Next Page IconTo Next Page
To Next Page IconTo Next Page
To Previous Page IconTo Previous Page
To Previous Page IconTo Previous Page
Loading...
R1-06/13