EasyManua.ls Logo

Triumph TR2 - Page 215

Triumph TR2
422 pages
Print Icon
To Next Page IconTo Next Page
To Next Page IconTo Next Page
To Previous Page IconTo Previous Page
To Previous Page IconTo Previous Page
Loading...
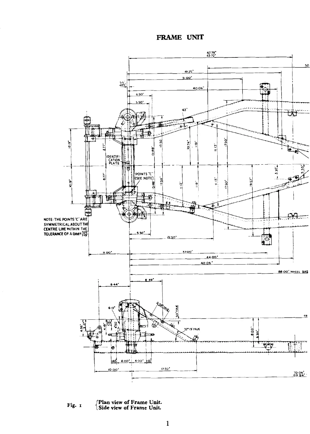
FRAME
Fig.
1
{
Plan
view
of
Frame
Unit.
Side view
of
Frame
Unit.

Other manuals for Triumph TR2

Related product manuals