EasyManua.ls Logo

TYM T400 - Page 187

TYM T400
301 pages
Print Icon
To Next Page IconTo Next Page
To Next Page IconTo Next Page
To Previous Page IconTo Previous Page
To Previous Page IconTo Previous Page
Loading...
9-12
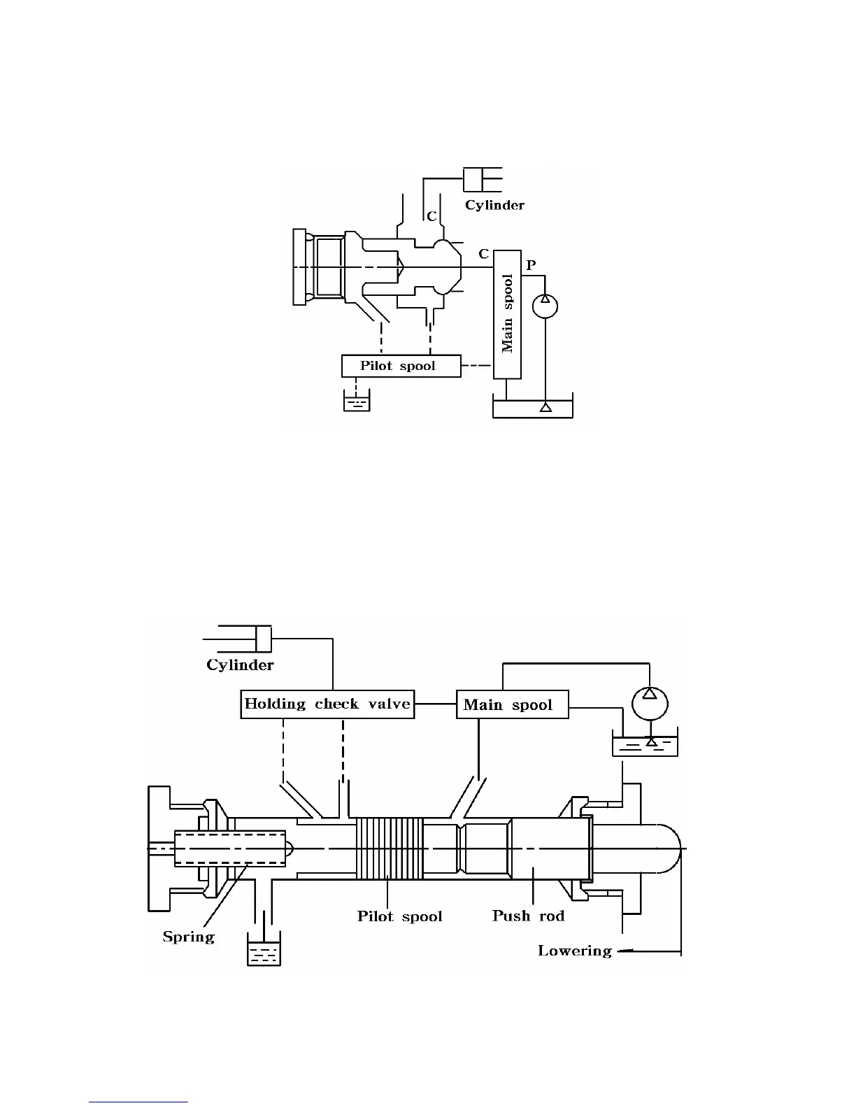
4) Holding check valve
It consists of a check poppet and spring,and is installed between the cylinder port and the main spool.
It blocks the flow from the cylinder to the valve in the neutral and in the lifting position,thus
preventing the cylinder from releasing in the neutral or lifting position when the pump stops.
In the lowering position,the pilot spool release the spring chamber pressure and the check poppet
opens the passage from thee cylinder to the tank.
Fig.9-32
5) Pivot spool
It consists of a pilot spool,sleeve,spring,plug,and push rod.
It is activated by the pilot pressure only while the main spool is in the lowering position.It connects
the check valve spring chamber and tank to open the check valve.In other cases,that is, in the neutral
or lifting position,the holding check valve functions as a check valve because the check valve spring
chamber and port C are inter-connected.
Fig.9-33

Table of Contents

Related product manuals