EasyManua.ls Logo

Vallox 75 - Electric Radiator Control Diagram; Electric Radiator Operation; Fan Speed and Supply Air Control; Heat Recovery Safety Features

Vallox 75
14 pages
Print Icon
To Next Page IconTo Next Page
To Next Page IconTo Next Page
To Previous Page IconTo Previous Page
To Previous Page IconTo Previous Page
Loading...
VALLOX 75/95
Parts list VALLOX 75 / 95
Description of operation for VALLOX 75 / 95
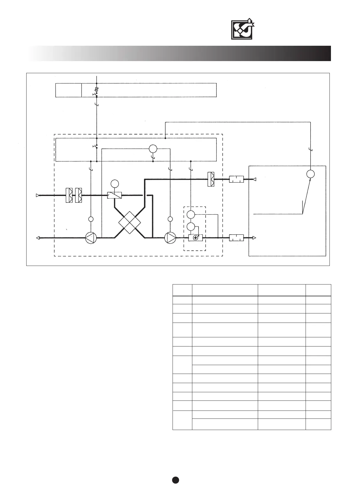
Control of operation
Power supply to the unit is controlled with the 0/1 switch in the
distribution panel. There is also a service switch SS inside the
unit.
Fan speed adjustment
The S and E fans of the unit are controlled depending on
operating conditions with a separate 4-step (1, 2, 3 and 4)
control centre HS located in the ventilation zone, or with a
cooker hood.
Supply air temperature
Regulating thermostat T1 controls the operation of the electric
radiator R, keeping the supply air going out from the unit at the
setpoint.
Heat recovery bypass
Summer-time bypass of the heat recovery cell HR is done
manually by turning the HR damper H in the bypass position for
the summer.
Heat recovery antifreezing
The antifreezing thermostat T4 of the HR cell keeps stopping the
supply air fan S, thereby preventing the risk of the freezing of
the HR cell. The fan starts automatically as soon as the risk of
freezing has passed. The threshold temperature of the risk of
freezing can be set at the thermostat T4.
Overheat protector of the electric radiator
The overheat protector T2 of the radiator R is triggered and
power supply to the heating unit is stopped, if the temperature
of the thermostat exceeds +80°C.
The overheat protector is reset manually.
7
CONTROL DIAGRAM AND DESCRIPTION OF OPERATION FOR VALLOX 75/95 , ELECTRIC RADIATOR
Code Name Technical details Standard /
option
G3 Filter, extract air and supply air G3 Standard
F7 Fine filter, supply air at least F7 F7 Standard
H HR bypass damper Manual Standard
HS Speed adjustment Separate control centre Option
or cooker hood
R Post-heating radiator Electric radiator 0.5 kW Standard
HR Heat recovery cell Efficiency approx. 60% Standard
S Supply air fan / VALLOX 75 105 W, 65 l/s (50 Pa) Standard
Supply air fan / VALLOX 95 180 W, 80 l/s (75 Pa) Standard
SS Service switch Door switch Standard
T1 Regulating thermostat 0…40 °C Standard
T2 Overheating protector (2) 80 °C , manually reset Standard
T4 HR antifreezing thermostat Factory setting +4 °C Standard
E Extract air fan / VALLOX 75 105 W, 75 l/s (80 Pa) Standard
Extract air fan / VALLOX 95 180 W, 95 l/s (100 Pa) Standard
G3
DISTRIBUTION
PANEL
10A
230 V
VALLOX 95/75
INTERNAL ELECTRICAL AND CONTROL CONNECTIONS
G3
G3
SILENCER
SILENCER
FAN SPEED ADJUSTMENTSEPARATE
COOKER HOOD OR
CONTROL CENTRE
VENTILATION ZONE
H
SS
F7
M
E
S
T4
M
T1
T2
R
POST-HEATING
RADIATOR
HEAT RECOVERYCELL
(HR)
HS

Other manuals for Vallox 75

Related product manuals