EasyManua.ls Logo

Valor Fires BRUNSWICK - Brunswick Stove Installation Guide; Stove Assembly and Inglenook Installation; Chimney Requirements and Sweeping

Valor Fires BRUNSWICK
8 pages
Print Icon
To Next Page IconTo Next Page
To Next Page IconTo Next Page
To Previous Page IconTo Previous Page
To Previous Page IconTo Previous Page
Loading...
4
Assembly Of Stove
Remove legs, collar and blanking plate from stove and fit in desired position. The collar
can be fitted top or rear.
The legs can be fitted at front of ash lip or rearward. To make easier for handling on
installation, remove baffle plate, side bricks, back brick and door. Place in a secure
place to avoid damage.
Refit after installation.
Stove Installation, Operating & Maintenance Instructions
IMPORTANT: THIS APPLIANCE MUST BE INSTALLED BY A COMPETENT PER-
SON AND MUST COMPLY WITH NATIONAL BUILDING REGULATIONS AND LO-
CAL BY-LAWS. UNLESS THE INSTALLER IS QUALIFIED TO APPROVE INSTAL-
LATION THEN APPROVAL MUST BE SOUGHT FROM YOUR LOCAL BUILDING
CONTROL DEPARTMENT. THE SUPPLIERS ACCEPT NO RESPONSIBILITY IF
THIS ADVICE IS NOT COMPLIED WITH.
THIS APPLIANCE HAS BEEN EXTENSIVELY TESTED FOR SAFETY AND EFFI-
CIENCY, DO NOT ATTEMPT TO MODIFY IT. ALWAYS USE GENUINE REPLACE-
MENT PARTS AS RECOMMENDED BY YOUR SUPPLIER. FAILURE TO ADHERE
TO THIS ADVICE COULD INVALIDATE YOUR GUARANTEE.
Installation Instructions
Check the chimney is in good condition, dry, free from cracks and obstructions. The
diameter of the chimney flue should not be less than 150mm and not more than
230mm. If any of these requirements are not met, the chimney should be lined by a
suitable method.
The chimney height and the position of the chimney terminal should conform to Building
Regulations.
A flue draught of minimum 12 Pascals and a maximum of 15 Pascals water gauge is
required for satisfactory appliance performance. The flue draught should be checked
under fire at high output and if it exceeds the recommended maximum, a draught stabi-
liser must be fitted so that the rate of burning can be controlled, and to prevent overfir-
ing.
If you have any doubts about the suitability of your chimney, consult your local dealer/
stockist.
The chimney must be swept before connection to the stove and checked every six
months there after. If there is an excessive build up of soot, then the chimney must be
13
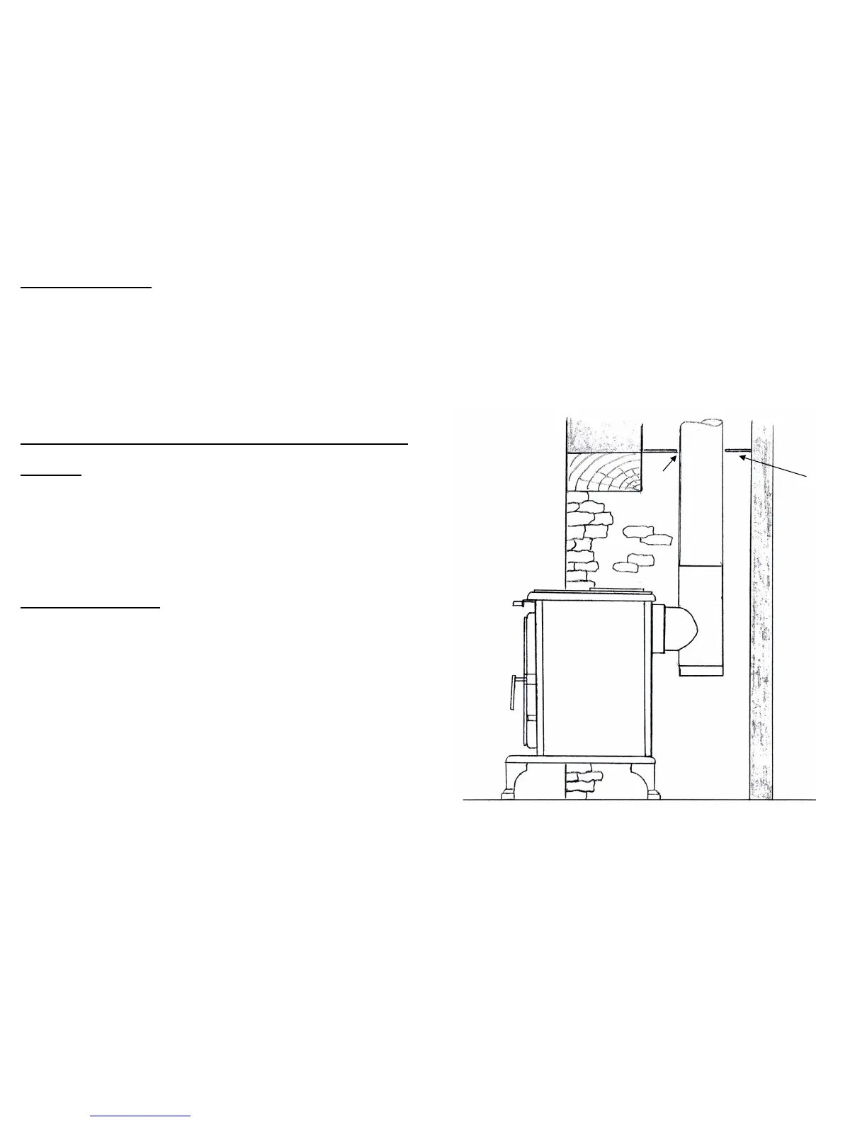
Typical Installation For Inglenook Fireplaces
Inglenook fireplaces can have very large bore chimneys. Check with
your installer—you may need a stainless steel flexible liner for solid fuel
fitting.
Closure
Plate
Seal

Related product manuals