EasyManua.ls Logo

Vapac LR10 - Master;Slave System

Vapac LR10
44 pages
Print Icon
To Next Page IconTo Next Page
To Next Page IconTo Next Page
To Previous Page IconTo Previous Page
To Previous Page IconTo Previous Page
Loading...
15
1.5.8 Master/Slave System
For larger duties, VAPANET “Resistive heater” units can be interconnected and arranged to operate from one proportional signal as a
Master/Slave system. The system allows up to 10 cylinders to be linked in this way. The slave units will all be “on / off” units. The master
unit, to which the proportional signal is connected, can be “on / off” but will preferably be a “proportional” unit.
To “configure” a system, ensure that the control signal is zero [disconnect the control signal, or switch the units off at the front panel switch].
Press and hold the service pin on the master control PCB, until the user LED’s flash amber, release and check that the LEDs flash
red/amber/green, if not repeat the procedure. Then press the service pin on each of the slave control PCB’s in the order that they are
required to operate, the slave user LED1 will flash Green/amber until it is configured, once the light goes out [or flashes red/off], proceed to
the next slave. If units of different capacity are used, ensure that the master is equal to or greater than the capacity of the slaves, and that
the largest capacity slaves come on before the smaller capacity units]. Once this process is complete, confirm the fact by pressing the
service pin on the master PCB until user LED2 goes green [this step is not necessary if all nine slave cylinders are configured].
Ö
xxxxxx xxxxxx
xxxxxxxxxxxxxxxxxxxxxxxxx
xxxxxxxxxxxxxxxxxxxxxxxxx
xxxxxxxxxxxxxxxxxxxxxxxxx
Õ
Esc
Ø
×
Vapac
J2
Vapac part no 1150631
CR1
Net
J1
Vapac PART No. 1150630
16
CR6
1
NetCR7
J6
J5
CR5
1
6
6
10
CR3
16
J1
J2
J3
1
F2
CR1
1
F1
CR2
J4
18
CR4
1
16
Vapac PART No. 1150630
16
CR6
1
NetCR7
J6
CR5
1
6
6
10
CR3
16
J1
J2
J3
1
F2
CR1
1
F1
CR2
J4
18
CR4
1
16
J2
40K 48K
J5
V
0V
CR2
CR2
CR2
AB AB
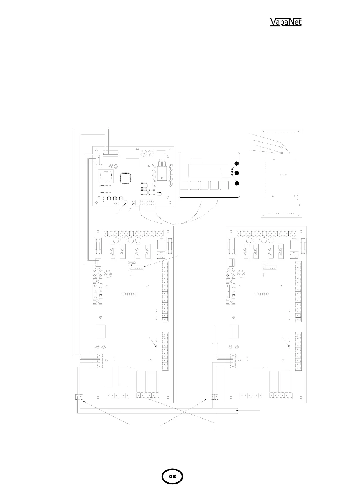
located on low voltage rail
Customers terminals within unit
PCB for "Master" or
"Slave" unit with display.
J1 see section 1.9.1
Link if control
signal is mA
current only.
Network Coms,
LED
configuration
UCP1
resistor
Button
Network
9V ac Supply
slave unit.slave unit.
"Slave 9" units.
PCB for "Slave 1" to
J1 see section 1.9.1
Not required forNot required for
J1 see section 1.9.1
Remote Indications
as Volt-free contacts:
CR6 gives the following remote indications
Terminal 547 - Unit Run (normally open)
Terminal 546 - Unit Run (normally closed)
Terminal 545 - Unit Run (Common)
Terminal 544 - Unit Alarm (normally open)
Terminal 543 - Unit Alarm (normally closed)
Terminal 542 - Unit Alarm (Common)
Display if fitted
Connection to
Network Expansion to
slave units 2 to 9 or
other network
components.
FRONT VIEW OF 1150630 BOARD
resistor
UCP1
configuration
If unit is not fitted
with a display then
UCP1 configuration
resistor is fitted on
configuration board
1150634 which is
plugged into CR4
on the master unit.
Display & Keypad
(Optional)
Network LED
USER LED 1
Network Button
USER LED 2