EasyManua.ls Logo

Varec 6700 - Page 24

Varec 6700
74 pages
Print Icon
To Next Page IconTo Next Page
To Next Page IconTo Next Page
To Previous Page IconTo Previous Page
To Previous Page IconTo Previous Page
Loading...
Liquid Level Indicator
16 Installation and Operations Manual
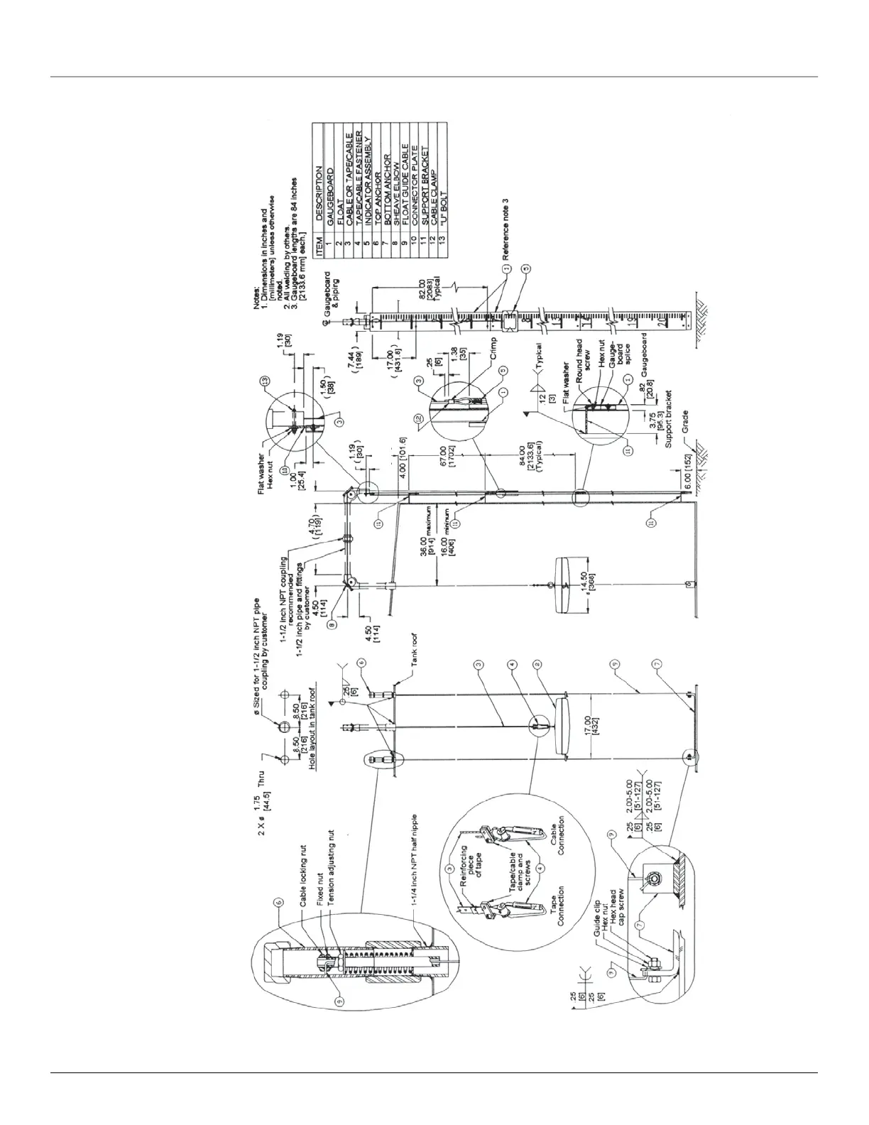
Figure 7: Cone Roof Tank Installation
12.50
[318]

Table of Contents