EasyManua.ls Logo

Varec 6700 - Page 51

Varec 6700
74 pages
Print Icon
To Next Page IconTo Next Page
To Next Page IconTo Next Page
To Previous Page IconTo Previous Page
To Previous Page IconTo Previous Page
Loading...
Installation
Varec, Inc. 43
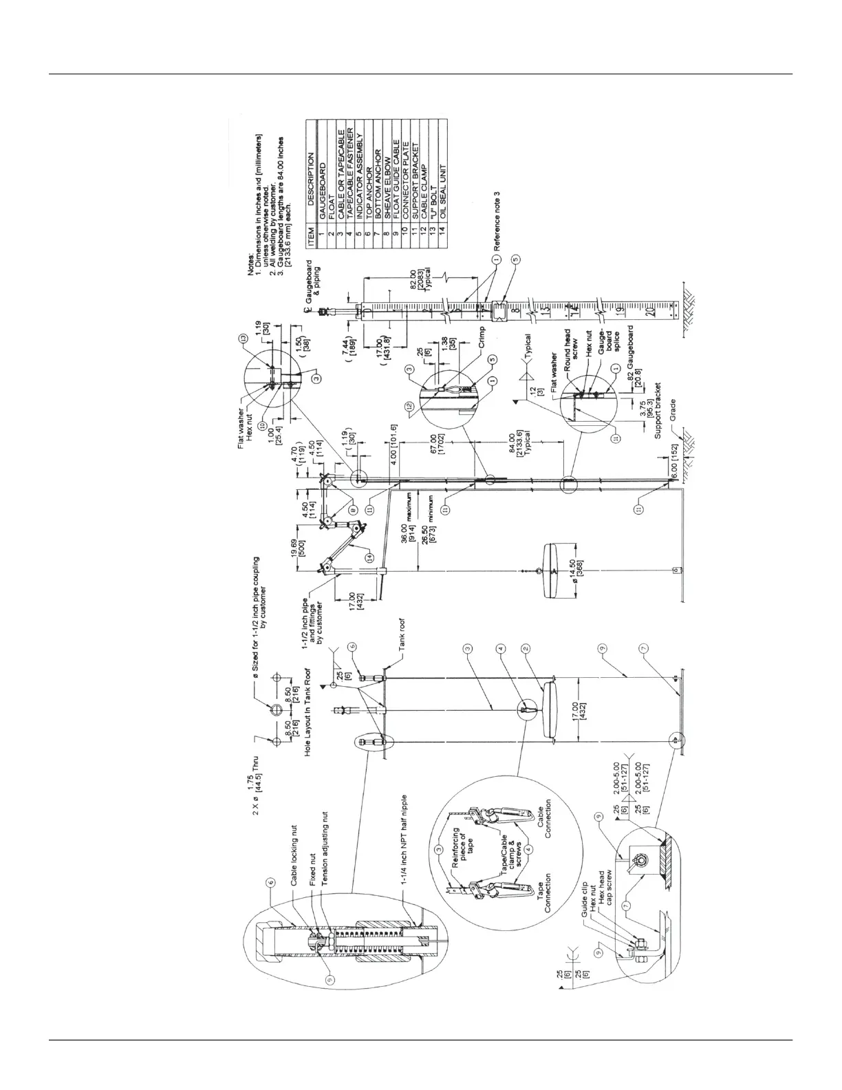
Figure 20: Severe Service Cone Roof Tank Installation
12.50
[318]

Table of Contents