EasyManua.ls Logo

VarTech Systems VTPC900PSS - Panel Connections Overview

VarTech Systems VTPC900PSS
12 pages
Print Icon
To Next Page IconTo Next Page
To Next Page IconTo Next Page
To Previous Page IconTo Previous Page
To Previous Page IconTo Previous Page
Loading...
19.0” C1-D2 Compliant Panel Mount PC 486-0032-0-00
10
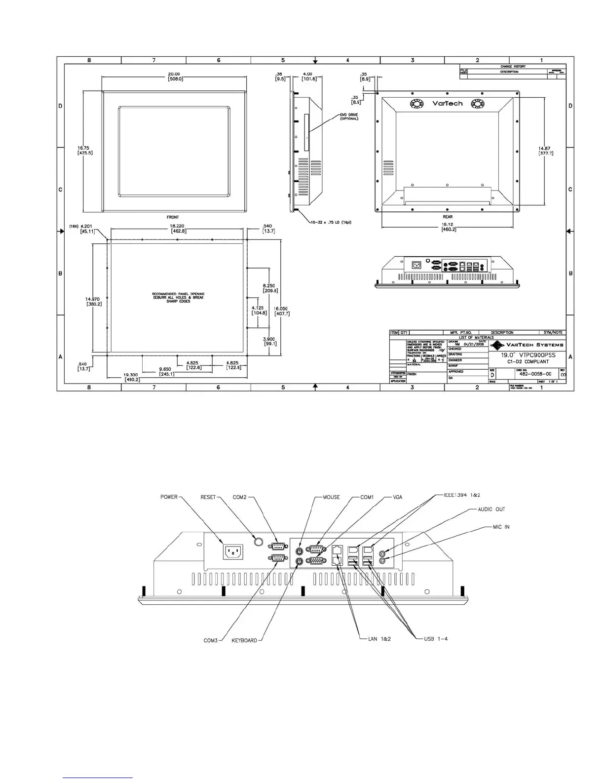
Panel Mount Drawing: Detail –A–
Connections to the Panel Mount PC
Bottom Rear View (AC unit shown)
- Connector Panel -