EasyManua.ls Logo

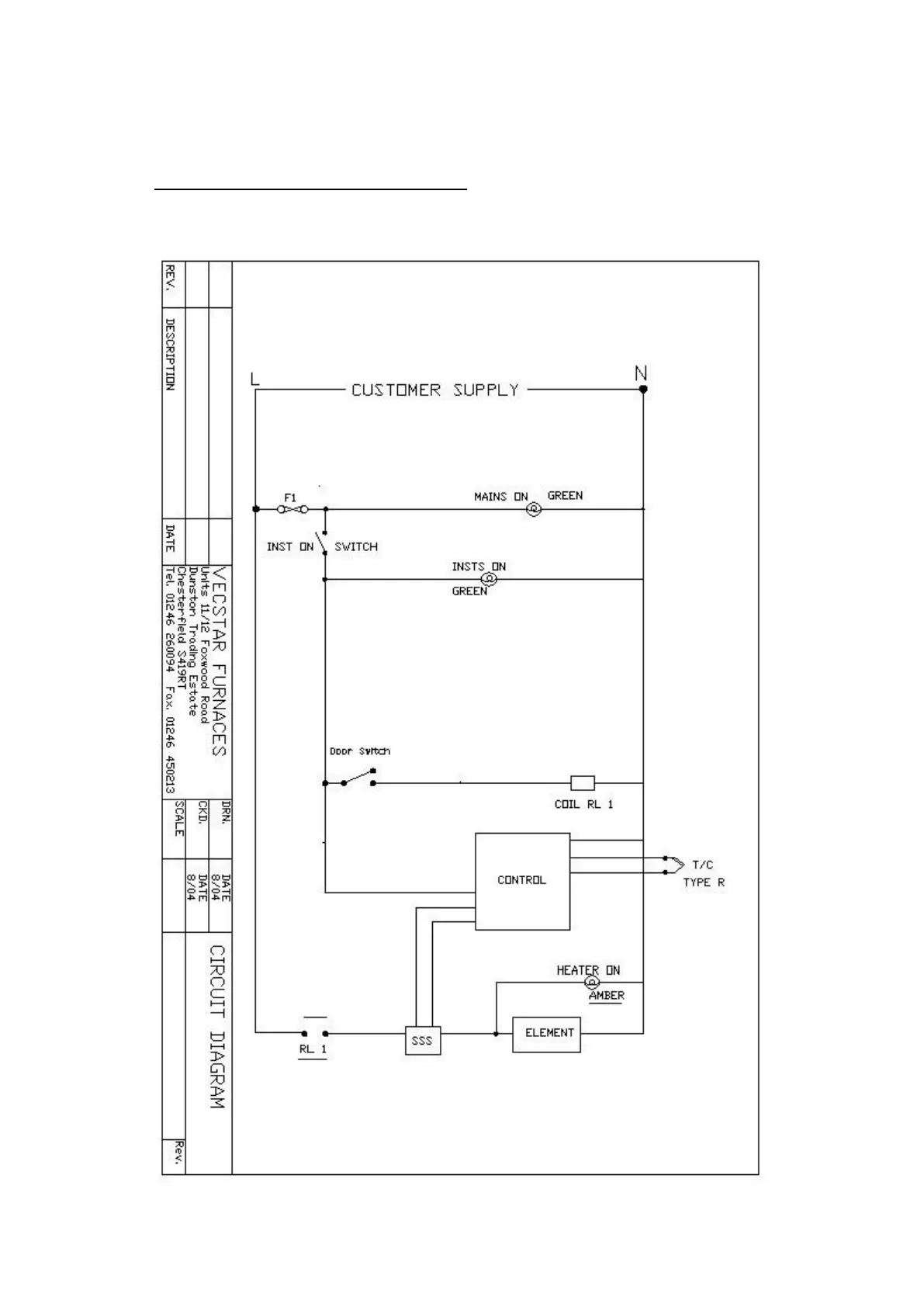
Vecstar MRF Series - Circuit Diagrams; Standard Wiring Diagram

Default Icon
15 pages
Print Icon
To Next Page IconTo Next Page
To Next Page IconTo Next Page
To Previous Page IconTo Previous Page
To Previous Page IconTo Previous Page
Loading...
8.0 STANDARD WIRING DIAGRAM