EasyManua.ls Logo

Veetsan VDU30 - Page 25

Veetsan VDU30
56 pages
Print Icon
To Next Page IconTo Next Page
To Next Page IconTo Next Page
To Previous Page IconTo Previous Page
To Previous Page IconTo Previous Page
Loading...
FRANÇAIS
41
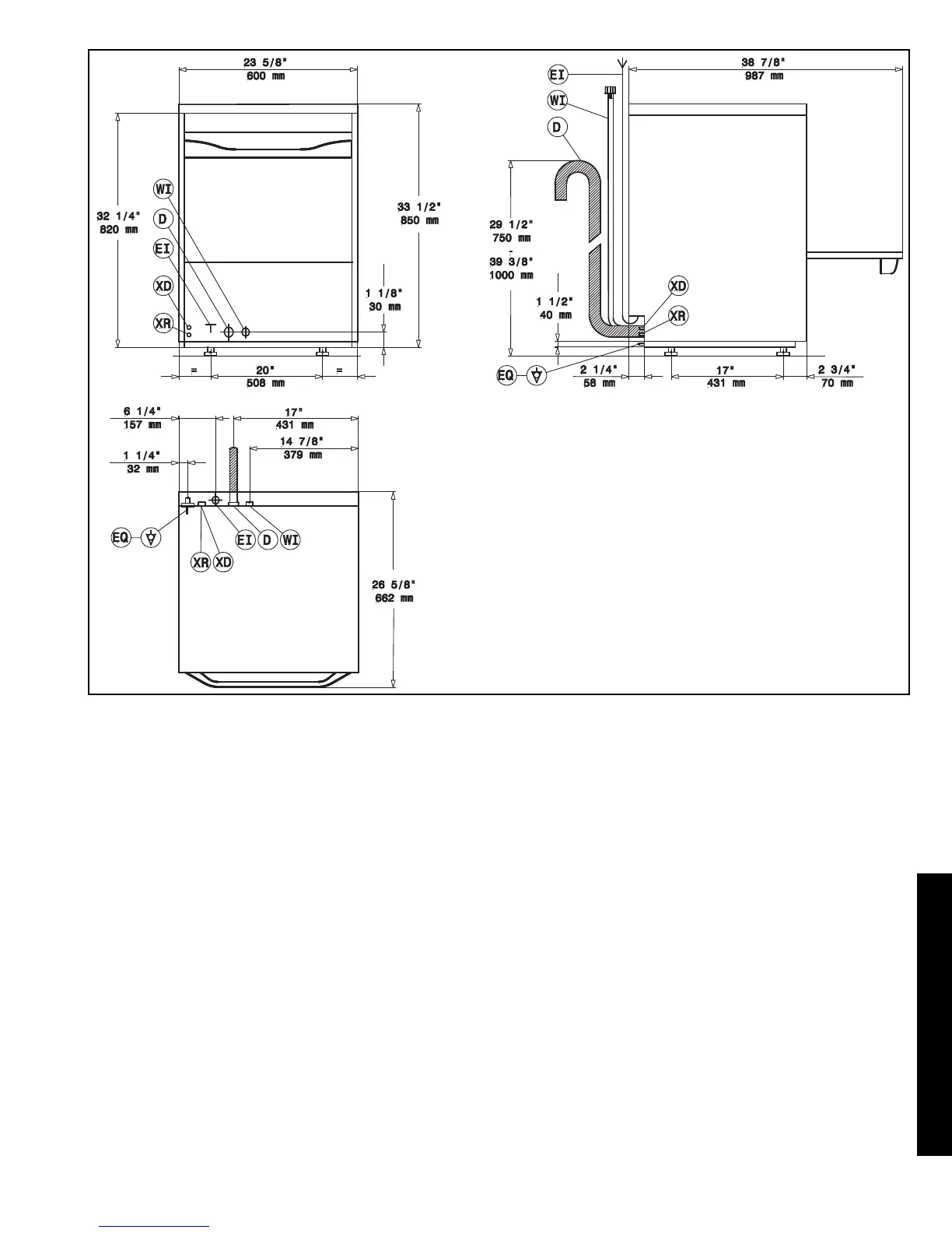
Fig. 4
Légende Fig. 4
WI - Tuyau d’alimentation en eau avec raccords de 3/4"/19 mm de diamètre
D - Tuyau de vidange diamètre int. 1 5/8" ID /40 mm (^) -11/16" /18 mm (*).
EI - Alimentation électrique
XD - Connexion détergent
EQ - Vis équipotentielle
XR - Connexion liquide de rinçage
(^) - Uniquement pour modèle avec vidange par gravité
(*) - Uniquement pour modèle avec pompe de vidange

Table of Contents

Other manuals for Veetsan VDU30