EasyManua.ls Logo

Veetsan VDU30 - Page 43

Veetsan VDU30
56 pages
Print Icon
To Next Page IconTo Next Page
To Next Page IconTo Next Page
To Previous Page IconTo Previous Page
To Previous Page IconTo Previous Page
Loading...
ESPAÑOL
23
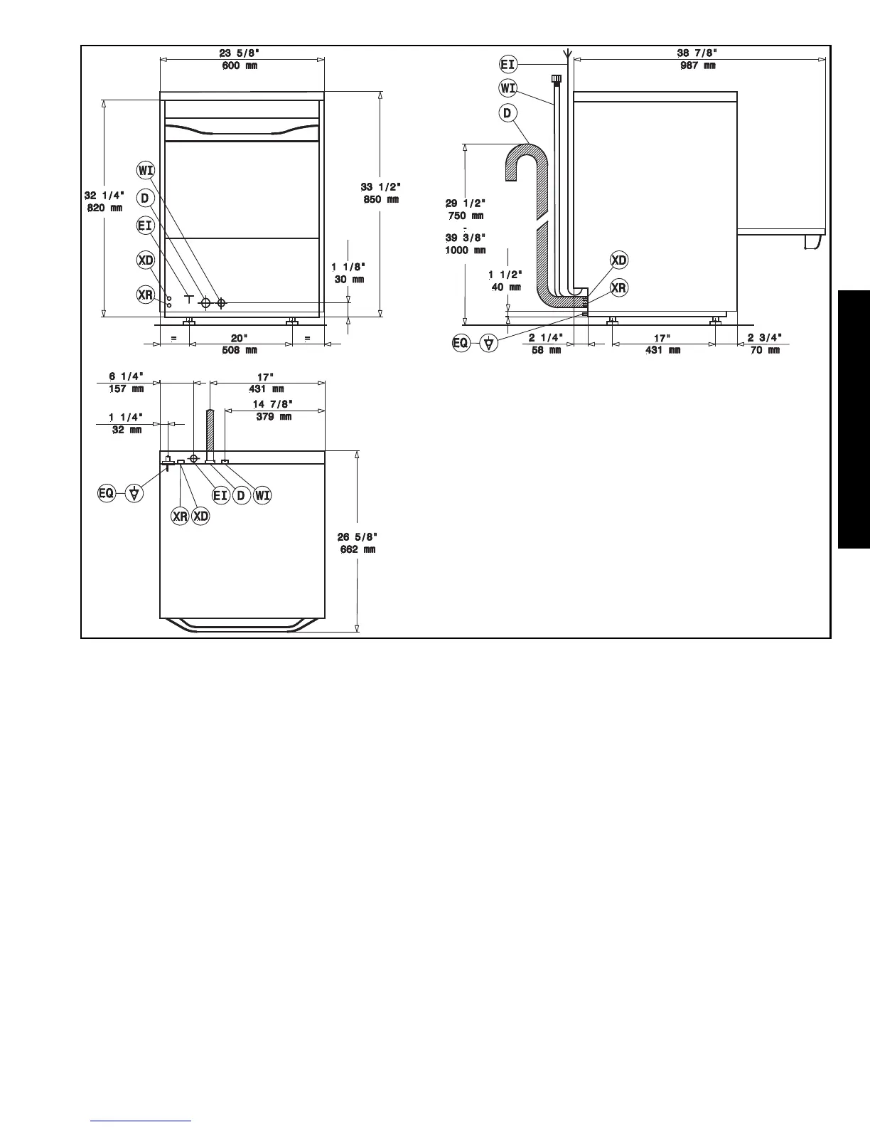
Figura 4
Leyenda Figura 4
WI - Tubo de entrada de agua con conexiones de 3/4”/19mm de diámetro
D - Tubo de desagüe, 1 5/8”/40 mm de diámetro interior (^) – 11/16” /18 mm de diámetro interior (*)
EI - Alimentación eléctrica
XD - Conexión detergente
EQ - Tornillo equipotencial (tierra)
XR - Conexión abrillantador
(^) - Sólo para modelo con desagüe por gravedad
(*) - Sólo para modelo con bomba de desagüe

Table of Contents

Other manuals for Veetsan VDU30