EasyManua.ls Logo

Veetsan VDU30 - Page 9

Veetsan VDU30
56 pages
Print Icon
To Next Page IconTo Next Page
To Next Page IconTo Next Page
To Previous Page IconTo Previous Page
To Previous Page IconTo Previous Page
Loading...
ENGLISH
7
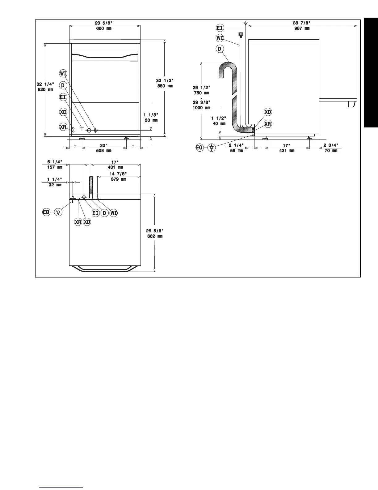
Figure 4
Legend Figure 4
WI - Water inlet pipe with 3/4”dia/19mm fittings
D - Outlet pipe 1 5/8” ID /40 mm (^) –11/16” ID /18 mm (*).
EI - Power supply
XD - Detergent connection
EQ - Equipotential (Ground) screw
XR - Rinse aid connection
(^) - Only for model with free-fall drainage
(*) - Only for model with drain pump

Table of Contents

Other manuals for Veetsan VDU30