EasyManua.ls Logo

VENDINGBOX 540 - Page 5

VENDINGBOX 540
15 pages
Print Icon
To Next Page IconTo Next Page
To Next Page IconTo Next Page
To Previous Page IconTo Previous Page
To Previous Page IconTo Previous Page
Loading...
Vending-Box COMPANY Model 540
6 The machine construction
During the 540 dispenser was being designed, our aim
was to design a device which would be easy to operate
and maintain. Because the device is an industrial
facility, whose functionality must be immediately
restored in case it works inappropriately, it has a module
construction. The main components like power supply
unit, drive, left or right door can be easily replaced with
a spare component.
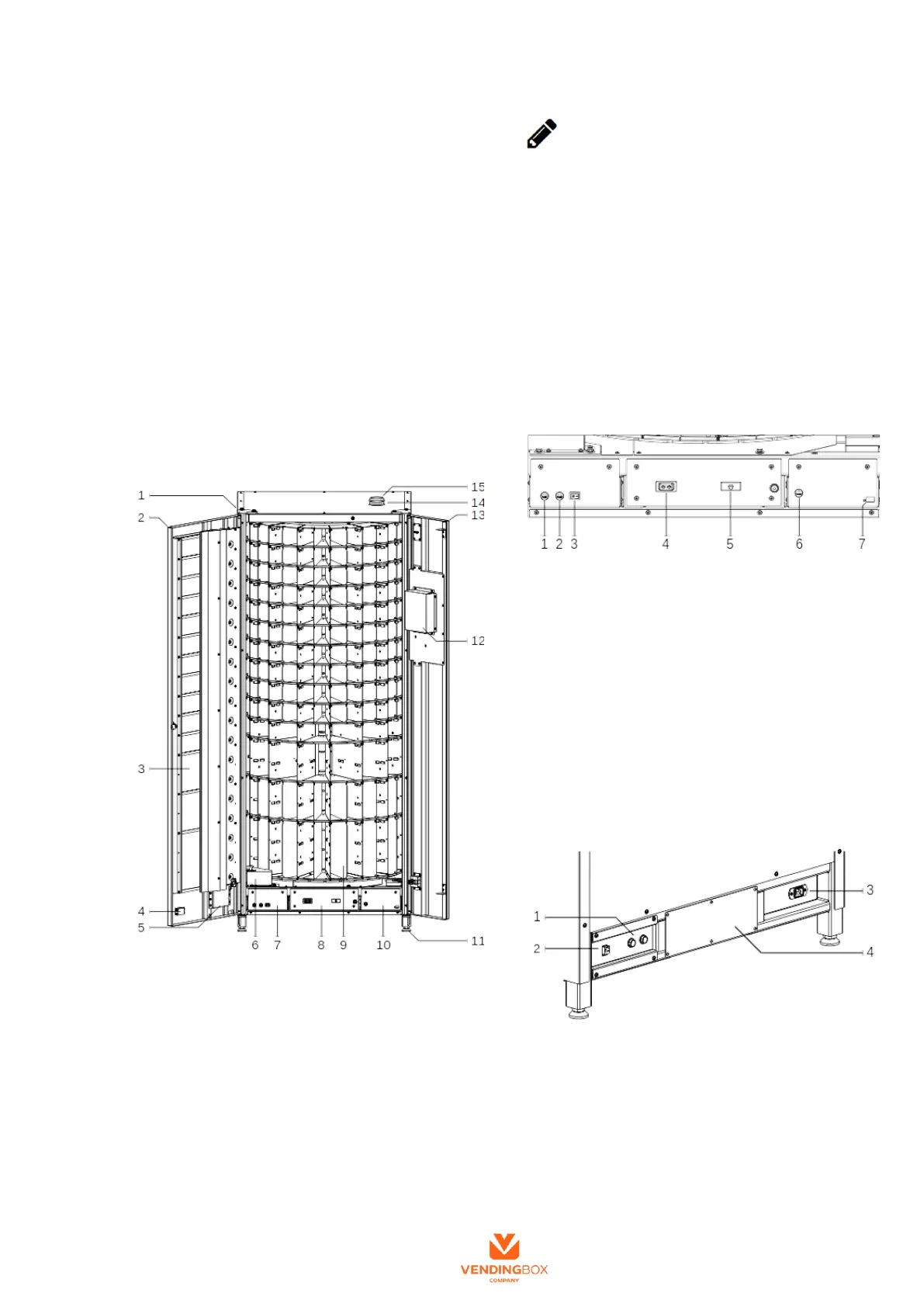
General view
The dispenser has monolithic, cubic construction. In the
front part, there is a double-leaf, asymmetrical door.
The left door leaf is opened with a key supplied with the
device. In this door, there is a range of sliding flaps
which ensure controlled availability to the feeder cells
from outside and which includes all the
electromechanics of the flaps and steering electronics.
The right door is opened after loosening two safety
screws, which are inside of the machine by the door’s
left edge at both the top and bottom of the door. In the
right door, there is a controller of the user’s panel and
the panel.
Below: the display of the general view of the device.
1. upper hinge of the door,
2. left door,
3. sliding flap,
4. tappet for the door sensor,
5. left door controller,
6. drum brake,
7. power supply unit,
8. front panel,
9. rotating feeder,
10. main driver,
11. adjustable foot,
12. cover of the controller of the user’s panel
13. right door,
14. Wi-Fi antenna,
15. GSM antenna.
On the upper cover of the machine, there are two
antennas for radio communication. In order to
make the radio interfaces work properly, you must not
place metal elements nearby, particularly the antennas
must not be covered with any elements.
In the lower part of the device, there is a module of the
power supply unit, main driver, drum brake and drive
module installed inside the device in its back part.
The central element is the rotating feeder whose role is
to store the distributed items. The construction of the
feeder enables its easy configuration in order to adjust
the size of the item storing cells.
6.1 Inner front panel
All switches and use sockets are inside the device on the
front panel, at the bottom of the machine. Their exact
location is showed below:
1. Fuse socket F1
2. Fuse socket F2
3. Main switch
4. Switch for semi-automatic feeder rotation
5. Sensor of the right door opening
6. Fuse socket F3
7. VNET gate address adjuster
6.2 Back of the device
At the back of the machine, there is a range of
connection sockets whose role is to supply power to the
device, connecting it to the ETERENET and connecting
subordinate devices with the use of VNET bus. Here is
also the rating plate thank to which the device and its
parameters can be identified. The exact location of these
elements is showed below:
1. VNET bus connectors
2. ETHERNET connector,
3. Power supply socket,
4. Rating plate panel