EasyManua.ls Logo

Vetus BPSPE - Series-Parallel Switch Wiring Diagrams; System Connection Schematics

Vetus BPSPE
Print Icon
To Next Page IconTo Next Page
To Next Page IconTo Next Page
To Previous Page IconTo Previous Page
To Previous Page IconTo Previous Page
Loading...
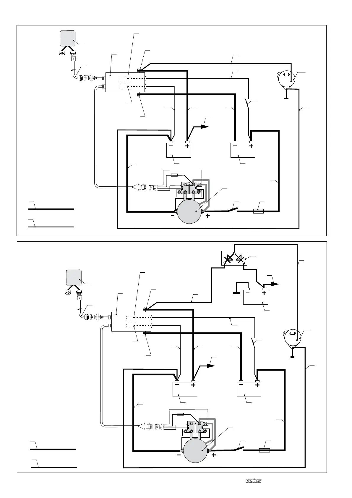
10 020560.01
Series-parallel switch BPSPE
B+
6 7
10
9
1
14
14
13
14
14 13
4
3
2
5
13
13
8
15
16 mm
2
14
13
30a (+BAT2)
30 (+BAT1)
51 (+ALT)
31a (-BAT2)
31 (-BAT1)
B+
10
9
1
14
14
14
4
3
2
5
13
13
12
8
14
11
16 mm
2
14
13
6 7
13
14 13
8
15
30a (+BAT2)
30 (+BAT1)
51 (+ALT)
31a (-BAT2)
31 (-BAT1)