EasyManua.ls Logo

Viessmann VITOCAL 111-S - Page 41

Viessmann VITOCAL 111-S
128 pages
Print Icon
To Next Page IconTo Next Page
To Next Page IconTo Next Page
To Previous Page IconTo Previous Page
To Previous Page IconTo Previous Page
Loading...
41
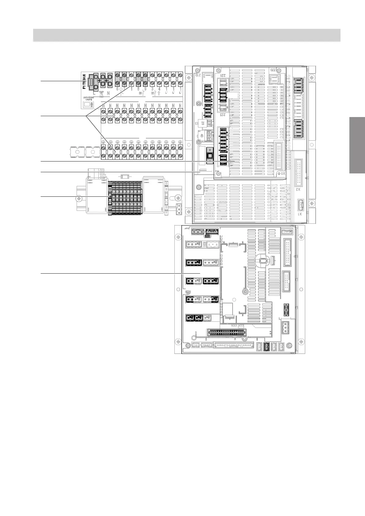
Indoor unit: Electrical terminal areas
F4
145
F0
X31
F16F14
211
224
225
216
214
241
J1
193A
F13
F11
G
212
X24
F12
X18
X1
X2
X3
222
F6
F3
E
A
B
C
D
F
Fig. 35
A
Heat pump control unit power supply 230 V~: See
page 52.
F1 Fuse 6.3 A (slow)
B
Luster terminals: See page 46.
X1 Terminals for protective conductors of all asso-
ciated system components
X2 Terminals for neutral conductors of all associ-
ated system components
C
Expansion PCB on main PCB: See page 44.
D
Main PCB: See page 42.
F3 Fuse 2.0 A (slow)
E
If available:
Switching module and power supply for instanta-
neous heating water heater: See page 53
onwards.
F
Controller and sensor PCB: See page 46.
Installation sequence
Electrical connection (cont.)
6199592
Installation

Related product manuals