EasyManua.ls Logo

Viessmann VITOCAL 111-S - Page 48

Viessmann VITOCAL 111-S
128 pages
Print Icon
To Next Page IconTo Next Page
To Next Page IconTo Next Page
To Previous Page IconTo Previous Page
To Previous Page IconTo Previous Page
Loading...
48
A
[{S
DE
[{{]
0-10V
f-]
A
[{A
DE
[{D
DE
+ -5 63 41 21 2
B
L1N
H
L1
N
M
1~
C
D
F G
E
K
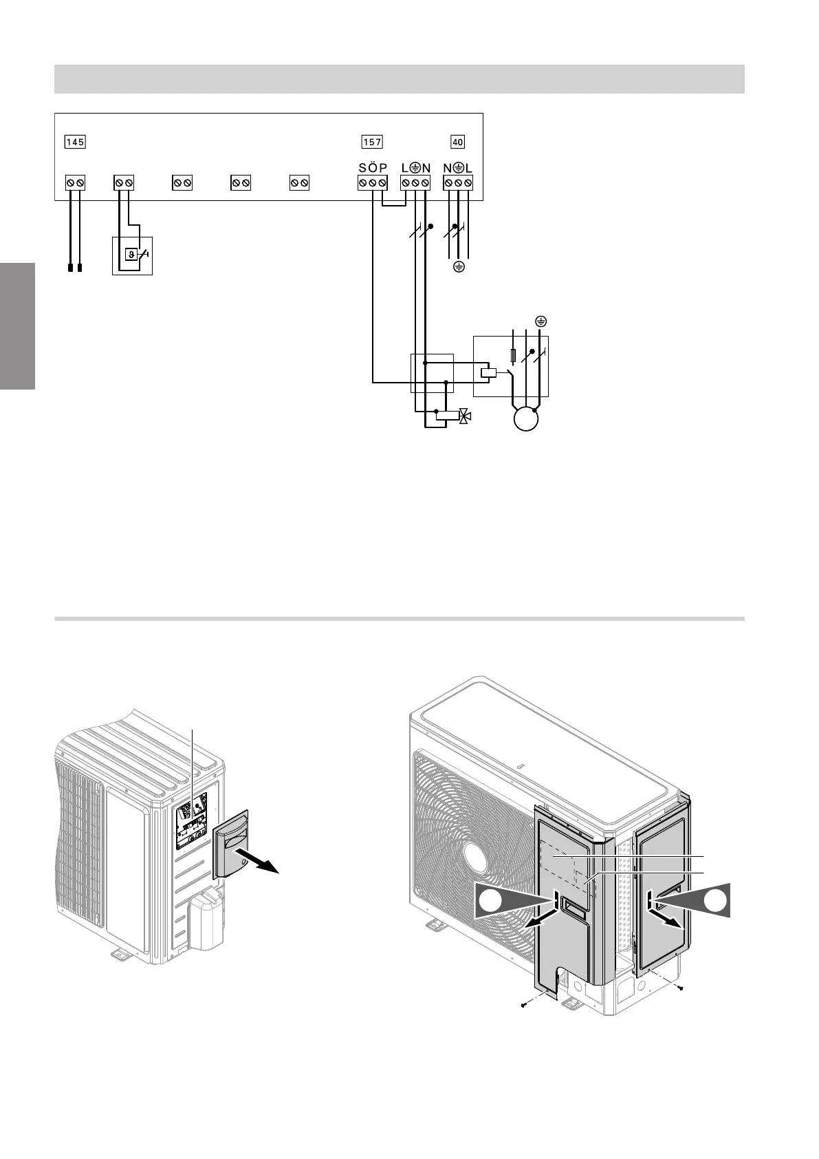
Fig. 40
A
EA1 extension
B
Power supply 1/N/PE 230 V/50 Hz
C
Junction box (on site)
D
Fuses and contactor for circulation pump for swim-
ming pool heating (accessories)
E
Jumper
F
3-way diverter valve for "Swimming pool" (zero
volt: heating the heating water buffer cylinder)
G
Circulation pump for swimming pool heating
(accessories)
H
Temperature controller for swimming pool temper-
ature control (floating contact: 230 V~, 0.1 A,
accessories)
K
KM-BUS connection to the controller and sensor
PCB
Outdoor unit: Overview of connections
Outdoor unit with 1 fan: Open wiring chamber
Types 111.B04 to 111.B06
A
Fig. 41
A
Wiring chamber:
Modbus connection to the indoor unit
Compressor power supply
Type 111.B08
13x
4x
A
1. 2.
B
Fig. 42
A
Modbus cable to the indoor unit
B
Compressor power supply
Installation sequence
Electrical connection (cont.)
6199592
Installation

Related product manuals