EasyManua.ls Logo

Viessmann VITOCAL 300-A - Page 83

Viessmann VITOCAL 300-A
236 pages
Print Icon
To Next Page IconTo Next Page
To Next Page IconTo Next Page
To Previous Page IconTo Previous Page
To Previous Page IconTo Previous Page
Loading...
Hydraulic installation scheme ID: 4605352_1304_03
40
42
43
P1
15
14
13
12
-2X3.8;3.9-
8
9
2
--230V--
--KM BUS--
--41/S1--
---41/R1--45--
51
23
83
80
81
91
90
93
96
97
50
--2/F4--
--2/212.2--
--95/2--
--95/20--
--95/52--
73
74
71
72
68
70
--2/211.5-----
KW
WW
30
1
20
--
100
101
102
103
105
--105/143--
--105/50--
104
----105/50--
--143--
-KM BUS-
--230V--
--50--
25
24
4
5
7
6
10
--2/F0--
--2/211.1--
-2/211.2--24--
-
--2/211.4--
-
27
26
22
--2/222.1;2--
--2/F20--
--2/222.4--21--
--2/211.2--6--
-2/224.7-
-
--2/F13--
44
31
32
45
35
33
34
36
--2/224.6--
--
--2/212.3--
--41/S2--
--2/F6--
--41/R1--40--
41
--52--
--20--
-230V-
--2--
-KM BUS-
95
64
63
61
66
67
--2/F12--
--2/225.1--67--
-70/X4.1;4.2-
--64/20--
--2/225.2;3--
--230V--
-KM BUS-
-8/145-
--8/145--
--8/145--
--145--
11
--145--
--145--
--R1--
--S1--
--S2--
--X3.8;3.9--
--F6--
--F20--
--224.7--
--212.3--
--222.1;2--
--F13--
--F0--
--F12--
--F4--
--211.2--
--211.5--
--225.1--
--212.2--
--225.2;3--
--211.1--
--211.4--
--222.4--
--224.6--
--2/224.6--
--B/137--
60
M2
A1
M3
75
--230V--
--R1-6--
--2/211.5--
qCP
qCQ
--130/R1-6--
wP
--KM BUS--
--230V--
wQ
--KM BUS--
--DE1--
--DE2--
--230V--
wI
--21/22----2/222.4--
wO
--13/14----2/224.7--
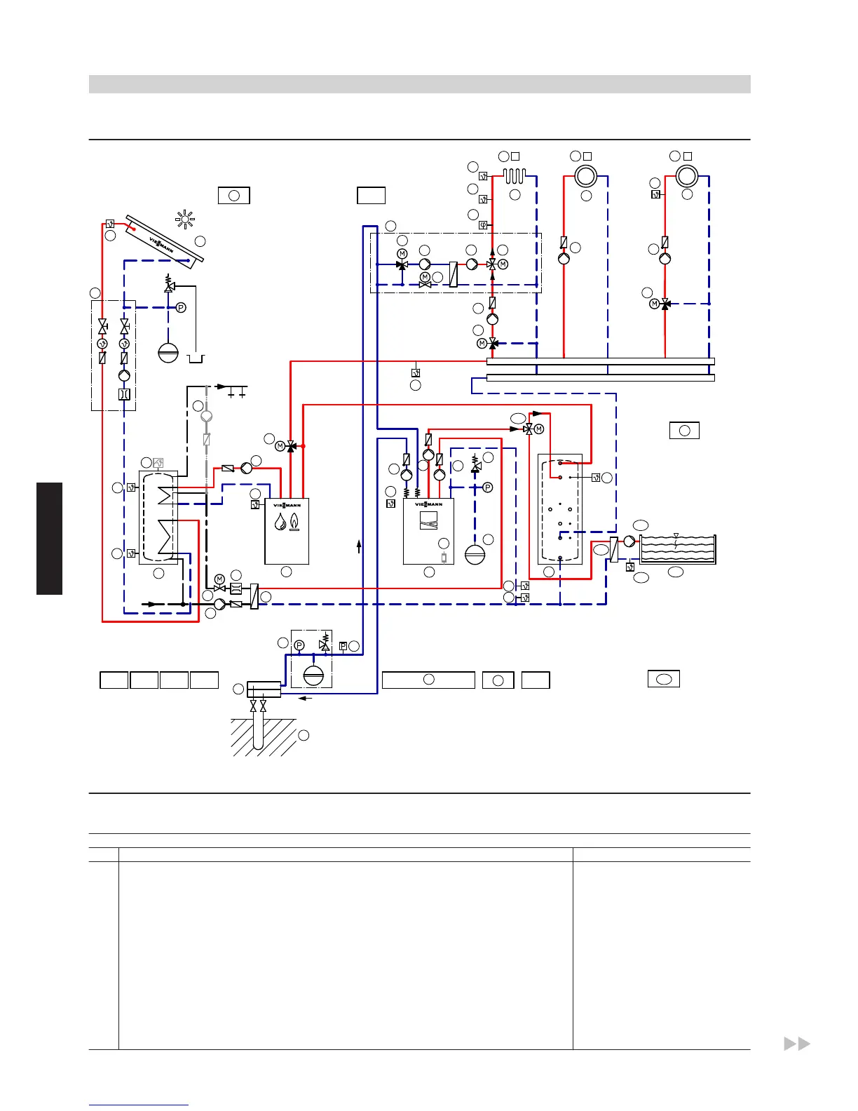
Note: This scheme is a general example without shut-off valves or safety equipment. This does not replace the need for on-site engineering.
Equipment required
ID: 4605352_1304_03
Pos. Designation Part no.
Heat pump
1
Heat pump See Viessmann pricelist
2
Heat pump control unit Vitotronic 200, type WO1B Standard delivery pos. 1
4
Instantaneous heating water heater See Viessmann pricelist
5
Primary pump, UP (integrated for type BWC) See Viessmann pricelist
6
Secondary pump UP (integrated for type BWC) See Viessmann pricelist
7
Circulation pump for cylinder heating UPSB (standard delivery for type BWC) See Viessmann pricelist
8
Safety equipment block with safety assembly (integrated for type BWC) 7143 779
9
Expansion vessel secondary circuit See Vitoset pricelist
qP
Outside temperature sensor ATS Standard delivery pos. 4
qW
Geothermal probe/geothermal collector on site
qE
Brine distributor for geothermal probes/geothermal collectors See Viessmann pricelist
qR
Brine accessory pack See Viessmann pricelist
qT
Pressure switch, brine circuit 9532 663
Vitocal 300-G/350-G
(cont.)
88
VIESMANN
System examples
4
5822 472 GB

Other manuals for Viessmann VITOCAL 300-A

Related product manuals