EasyManua.ls Logo

ViewSonic LDP216-121 - Page 102

ViewSonic LDP216-121
160 pages
To Next Page IconTo Next Page
To Next Page IconTo Next Page
To Previous Page IconTo Previous Page
To Previous Page IconTo Previous Page
Loading...
8
Türkçe
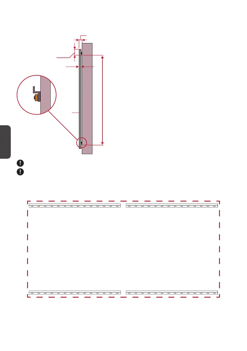
. Duvara Montaj BraketleriniDuvara Montaj Braketleri
Duvara Montaj Braketleri
NOT: 






. Duvara Montaj Braketlerini

W
a
l
l
Display
77
mm
3.031 in
35 mm
1.378 in
93.01 in
4.016 in
102 mm
2362.5 mm

Other manuals for ViewSonic LDP216-121

Related product manuals