EasyManua.ls Logo

Viking Range VUIM150DLSS - Page 3

Viking Range VUIM150DLSS
20 pages
Print Icon
To Next Page IconTo Next Page
To Next Page IconTo Next Page
To Previous Page IconTo Previous Page
To Previous Page IconTo Previous Page
Loading...
3
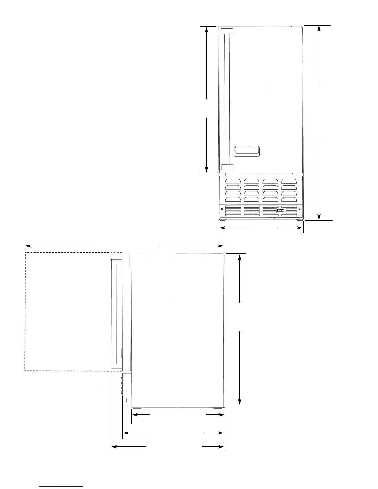
SPECIFICATIONS/DIMENSIONS
PROFESSIONAL MODELS
BBaassiicc EElleeccttrriicc DDaattaa
•115 VAC/60 Hz
•Maximum amps - 3.0
Approximate Shipping Weight - 110 lbs.
(49.5 kg)
Front View
Side View
34 1/4”
(87.0 cm)
22” (55.9 cm)
27 1/8” (68.9 cm)
24 5/8” (62.6 cm)
37 9/16” (95.4 cm)
Min. 34 1/4”
(87.0 cm)
Max. 35”
(88.9cm)
26”
(66.0 cm)
14 3/4”
(37.5 cm)