EasyManua.ls Logo

Viking VCCI3608 - Page 12

Viking VCCI3608
20 pages
Print Icon
To Next Page IconTo Next Page
To Next Page IconTo Next Page
To Previous Page IconTo Previous Page
To Previous Page IconTo Previous Page
Loading...
ROOF INSTALLATION
EXTERIOR-POWER VENTILATOR
DEV900-EXTERIOR POWER VENTILATOR KIT
(900 CFM)
1. Locate the blower on the rear slope of the roof. Place
it in a location to minimize duct run. The location
should be free of obstacles (TV leads, electrical lines,
etc.). Bear in mind, if the blower top is level with the
roof peak, it will not be seen from the street. Keep
this approximate location in mind as you work from
within the attic.
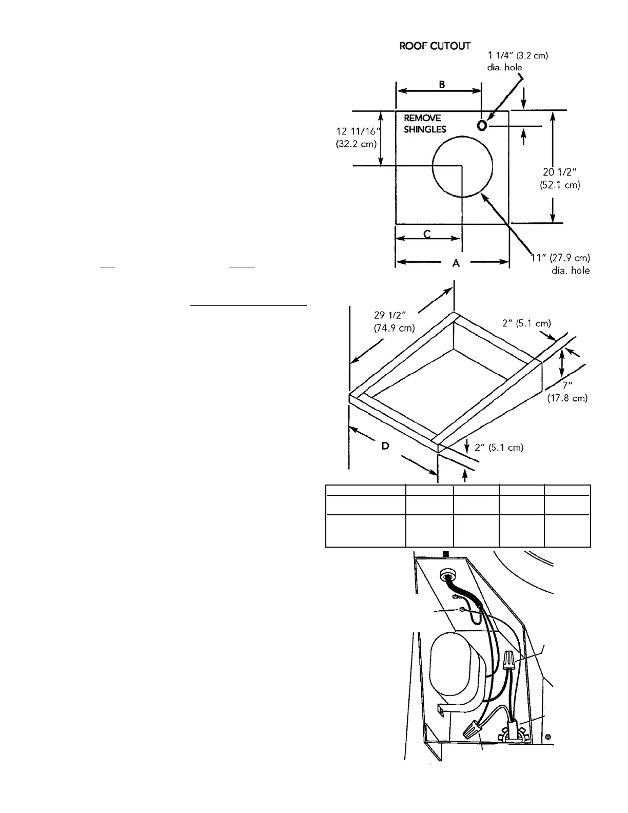
2. Mark a point halfway between rafters.
3. Drill a guide hole through the roof at this point.
4. From the outside, use the guide hole as a starting
point.
A. Use a T-square to measure 9 13/16” (24.9 cm) to
the left
of the guide hole, then down 12 11/16”
(32.2 cm) to locate the top left corner of the layout.
B. Starting from the top left corner, mark the
rectangular cutout and r
emove only the shingles in
this area.
5. Mark an 11” (27.9 cm) diameter circle centered on the
guide hole and mark the center of the 1 1/4” (3.2 cm)
diameter electrical wiring hole.
6. Cut out the roof board(s) along the 11” (27.9 cm)
diameter circle and drill a 1 1/4” hole as marked.
7. For flat roof installation, build a curb that will mount
the blower at a minimum pitch of 2/12. Discard end of
the blower should be pointed away from prevailing
winds.
8. Remove roofing nails from the upper two-thirds of the
shingles around the cutout area. Carefully lift the
shingles to allow the back flashing sheet on the blower
housing to fit under them.
9. Center the blower ring in the 11” (27.9 cm) diameter
hole, making sure that the 1 1/4” (3.2 cm) diameter
electrical wiring hold aligns with the hole in the wiring
box.
10. Attach the blower to the roof with the six screws
provided. It is recommended that the screws be
located inside the blower housing. All six holes in the
back panel must be filled, or any moisture that may
get inside the housing could leak into the house.
11. Using a good grade of roofing cement, seal all of the
shingles around the housing and flashing sheet as well
as the mounting screw heads.
12. Bring electrical wiring through the hole in the wiring
box and secure it according to local codes.
13. Make the electrical connections with the proper
connector for the type of wiring being used. Connect
white to white, black to black, and green or bare wire
to green.
14. Replace wiring box cover and screws. Do not pinch
wiring under the cover.
15. Check for free movement of the damper before
installing housing cover and screws.
16. Turn on power and check operation of the
blower.
Black to
Black
Ground to
grounding screw
120 VAC
Line in
12
White to
Blue
AA BB CC DD
DDEEVV11220000 1188 1155 99 1133//1166 2222
((4455..77 ccmm)) ((3388..11 ccmm)) ((2244..99 ccmm)) ((5555..99 ccmm))
DDEEVV11550000 2211 1188 1122 55//88 2255
((5533..33 ccmm)) ((4455..77 ccmm)) ((3322..11 ccmm)) ((6633..55 ccmm))

Related product manuals