EasyManua.ls Logo

Viking VCCI3608 - Page 15

Viking VCCI3608
20 pages
Print Icon
To Next Page IconTo Next Page
To Next Page IconTo Next Page
To Previous Page IconTo Previous Page
To Previous Page IconTo Previous Page
Loading...
15
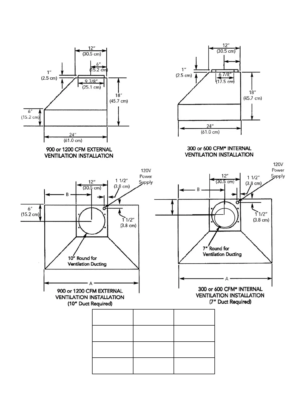
WALL HOOD DIMENSIONS
30”/36”/42” W. PROFESSIONAL CHIMNEY HOODS
AA BB
3300 WW..
2299 77//88
((7755..99 ccmm))
1144 1155//1166
((3377..99 ccmm))
3366 WW..
3355 77//88
((9911..33 ccmm))
1177 1155//1166
((4455..66 ccmm))
4422 WW..
4411 77//88
((110066..44 ccmm))
2200 1155//1166
((5533..22 ccmm))
77 11//22
((1199..11 ccmm))
88
((2200..33 ccmm))

Related product manuals